俊发滇池ONE3组团 5室2厅6卫 毛坯 1560万元
-
1560万
总价
-
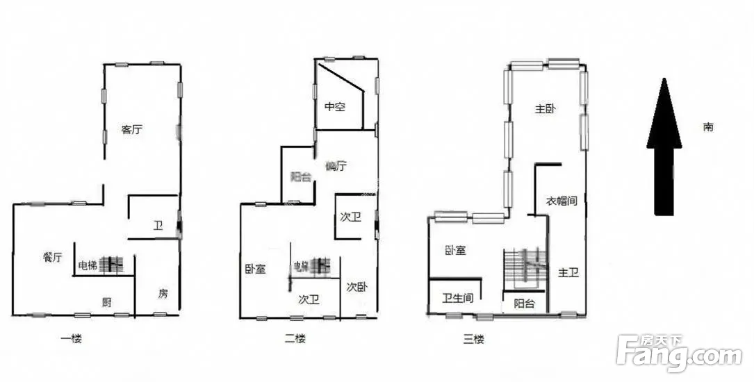
5室2厅6卫
户型
-
700.9㎡
建筑面积
买房加房产交流群,省钱不踩雷
3000+人正在热聊
加入群聊
-
单价
22257元/平米
- 挂牌价格解析
-
楼层
3层
- 咨询楼层
-
套内
暂无数据
- 咨询套内使用面积
-
楼型
独栋
-
朝向
东
-
装修
毛坯
-
年代
2016
-
发布
2026-01-01
-
深度测评
小区俊发滇池ONE(官渡-新亚洲体育城片区)
-
更多
楼户比、楼层高度、交易历史、抵押信息
房源描述(1)
-
核心卖点问经纪人
房屋坐落:滇池ONE 房源类型:独栋别墅 总占地面积:6900亩 产权面积:700平,五房两厅六卫 产权年限:70年 物业费:5元 证件情况:在手,满五 绿化率:51% 容积率:1.2 房屋卖点:中国十大豪宅之一,俊发滇池ONE法式临水独栋别墅,带前后300平私家花园,带地下车库,高品质低密度住宅区。
-
业主心态问经纪人
房东置换,诚心出售自己心爱的房子,看房有钥匙,可随时看房
-
小区配套问经纪人
位置:小区地理位置佳,绿化率高,居民素质高 配套:有健身器材,小型篮球场,可供小区居民使用 车位:停车位充足,建有地上停车场和地下车库 保安:小区内24保安巡逻
-
服务介绍问经纪人
本人从事房地产多年,公司有大量好房源,欢迎进入我的店铺查看,欢迎随时电话咨询,相信我的专业,为您置业安家保驾护航。
周边配套
地址:昆明市官渡区环湖东路与云秀路交叉口
交通综合评分
查看全部6.2
“较好”
超过昆明58.9%的小区
-
地铁公交
8.0
-
驾车出行
10.0
猜你喜欢
同小区其它房源
-
11370元/㎡
本月挂牌均价
-
1.74%
环比上月
买房加房产交流群,省钱不踩雷
3000+人正在热聊
加入群聊
- 免费咨询
- 专业服务
- 区域解读
- 户型分析
免责声明:房源信息由网站用户提供,其真实性、合法性由信息提供者负责,最终以政府部门登记备案为准。本网站不声明或保证内容之正确性和可靠性,购买该房屋时,请谨慎核查。入学情况仅凭历史经验总结,在此不承诺升学事宜。请您在签订合同之前,切勿支付任何形式的费用,以免上当受骗。


