带莲华书包 万科学府理工大四号地铁口 怡锦苑10楼
-
100万
总价
-
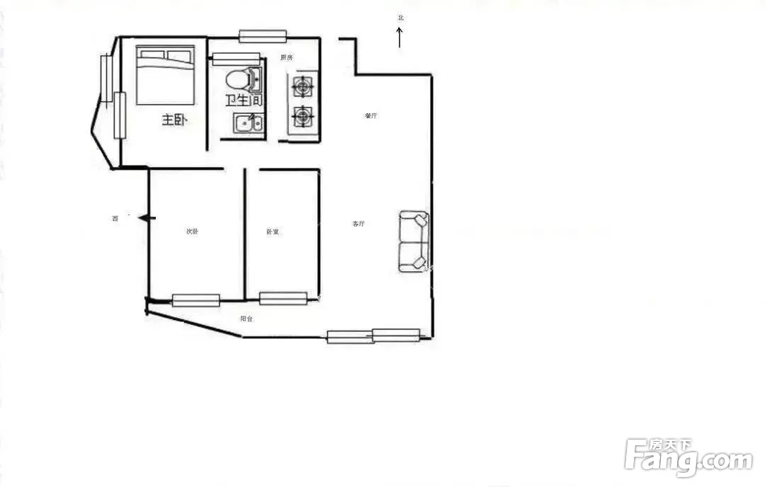
3室2厅1卫
户型
-
103.41㎡
建筑面积
买房加房产交流群,省钱不踩雷
3000+人正在热聊
-
单价
9670元/平米
- 挂牌价格解析
-
楼层
中层/18层
- 咨询楼层
-
套内
暂无数据
- 咨询套内使用面积
-
朝向
西南
-
装修
精装修
-
年代
2009
-
发布
2025-12-18
-
地铁
距4号线苏家塘站约420米
-
深度测评
小区怡锦苑?(五华-虹山片区)
-
更多
楼户比、楼层高度、交易历史、抵押信息
房源描述(1)
-
核心卖点问经纪人
相信为您推荐的这套房子您一定会满意,赶快行动吧,先到先得! 房屋年代∶2009,面积∶103.0平方米,朝向∶西南 1. 小区配备高端物业管理,让你享受宾至如归的服务; 2. 小区人文素质高,是您的居家的绝佳选择; 3. 小区居住安静舒适,让您拥有高品质的生活环境; 4. 小区绿化率高,绿树成荫鸟语花香让您随时呼吸到新鲜空气。
-
业主心态问经纪人
房源真实有效,业主诚心出售,看房方便,欢迎看房随时恭候,随时可以办理过户手续。
-
服务介绍问经纪人
昆明新亚企航地产成立于1999年,公司直营连锁300多家。我,普建萍,新亚地产一名专业的资深置业顾问,从事房地产工作10年,专注于市中心二手房买卖交易过户,按揭贷款等服务,精通每一个二手房交易流程。
-
税费分析房贷计算
房屋的相关税费 详细税费信息请电话联系
周边配套
交通综合评分
查看全部超过昆明14.3%的小区
-
地铁公交
10.0
-
驾车出行
10.0
本月均价 15534元/m²
环比上月 下跌 3.49%
同比去年 下跌 0.95%
猜你喜欢
同小区其它房源
户型齐全,主打明厨,明卫,双阳台,主卧朝南三居
怡锦苑户型主要有100平-142平的明厨,明卫,双阳台,主卧朝南的三居 、131平-142平的户型方正,明卫,主卧朝南的四居 。
*获取完整户型报告,同时会有免费语音讲解服务
-
10095元/㎡
本月挂牌均价
-
0.7%
环比上月
买房加房产交流群,省钱不踩雷
3000+人正在热聊
- 免费咨询
- 专业服务
- 区域解读
- 户型分析

