新出!业主忍痛割爱 精装4房2卫 书香云海二期
-
153.6万
总价
-
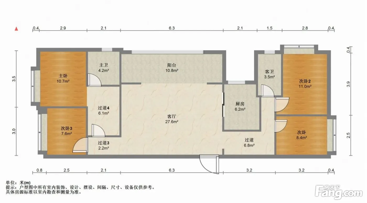
4室2厅2卫
户型
-
133.83㎡
建筑面积
买房加房产交流群,省钱不踩雷
3000+人正在热聊
-
单价
11477元/平米
- 挂牌价格解析
-
楼层
低层/34层
- 咨询楼层
-
套内
暂无数据
- 咨询套内使用面积
-
楼型
板楼
-
朝向
南北
-
装修
精装修
-
年代
2022
-
发布
2025-06-10
-
深度测评
小区书香云海(西山-马街)
-
更多
楼户比、楼层高度、交易历史、抵押信息
房源描述(1)
-
核心卖点问经纪人
【房屋简介】建于2023年,电梯,大平层设计,空间利用大化,餐厅客厅可独立。正规四居,楼层优越,南北通透,朝向良好,阳光充足。 【户型介绍】4室2厅2卫,布局合理,功能分区明确,生活动线流畅。 【装修与设施】精装修,带车位,小区环境优雅,生活便利。 【售价与面积】售价155万,面积133.83平方米,性价比高。 【推荐理由】楼层佳,户型通透,光线充足,适宜居住,是理想家园的选择。
-
业主心态问经纪人
【业主心态】业主急售,诚意满满!房源为精装修带车位,小区环境优美,生活便利。房东配合度高,随时看房,有议价空间,手续齐全,期待与您洽谈!
-
小区配套问经纪人
位置:小区地理位置佳,绿化率高,居民素质高 配套:有健身器材,小型篮球场,可供小区居民使用 车位:停车位充足,建有地上停车场和地下车库 保安:小区内24保安巡逻
-
服务介绍问经纪人
本人从事房地产多年,公司有大量好房源,欢迎进入我的店铺查看,欢迎随时电话咨询,相信我的专业,为您置业安家保驾护航。
周边配套
交通综合评分
查看全部超过昆明55.2%的小区
-
地铁公交
8.0
-
驾车出行
10.0
本月均价 11152元/m²
环比上月 下跌 1.11%
同比去年 下跌 15.2%
猜你喜欢
同小区其它房源
户型齐全,主打户型方正,主卧带卫,独立餐厅,大面宽阳台三居
华发书香云海户型主要有88平-123平的户型方正,主卧带卫,独立餐厅,大面宽阳台的三居 、130平-149平的采光充足,主卧带卫,独立衣帽间,独立餐厅,双阳台的四居 、79平-79平的南北通透,全明格局,户型方正的二居 。
*获取完整户型报告,同时会有免费语音讲解服务
-
8773元/㎡
本月挂牌均价
-
1.2%
环比上月
买房加房产交流群,省钱不踩雷
3000+人正在热聊
- 免费咨询
- 专业服务
- 区域解读
- 户型分析

