(杜绝虚假)钻石花园独栋 5房中空大厅 湖中间
-
678万
总价
-
5室2厅4卫
户型
-
350㎡
建筑面积
买房加房产交流群,省钱不踩雷
3000+人正在热聊
加入群聊
-
单价
19371元/平米
- 挂牌价格解析
-
楼层
3层
- 咨询楼层
-
套内
暂无数据
- 咨询套内使用面积
-
楼型
独栋
-
朝向
南
-
装修
毛坯
-
年代
2010
-
发布
2025-08-01
-
深度测评
小区钻石花园别墅(蓬江区-潮连)
-
更多
楼户比、楼层高度、交易历史、抵押信息
房源描述(1)
-
核心卖点问经纪人
1、(滨江新区,北新区官方中介!杜绝虚假房源) 2、可添加官方经纪人V:钟珠翠(浏览更多房源) 3、该区域绿化成熟,位置好,朝向好 4、价格透明一对一业主面谈,绝不吃差价! 5、专做滨江滨江新区,可提前预约几家房源对比,不用白跑几趟! 6,小区游乐园,泳池运动器材齐全!
-
业主心态问经纪人
1,房东置换,诚信出售,价格可以再谈,欢迎看房,随时恭候! 2、业主诚心出售房屋产权清晰方便交易。 3、房间物状保持好,基本新房。 4、房间是业主精心豪华装修,稍微的变动了一下原来格局,使房屋整体效果明显更适 合居住...
-
小区配套问经纪人
位置:小区地理位置,绿化,居民素质高 配套:有健身器材,儿童乐园 车位:停车位充足 保安:保安24巡逻
-
服务介绍问经纪人
红本在有,正常过户,证够2年 尊敬的客户:我是宏博地产经纪公司的资深经纪人,更多精品好房源请点击我的头像,或点击进入我的店铺,欢迎随时来电咨询,资深经纪人竭诚为您服务。
-
税费分析房贷计算
☆税费 首套置业税费(小于90平方)=总价1%、(大于90平方)=总价1.5% 二套置业=40%首付、三套置业=全款、超豪宅线(144平方)=60%首付
-
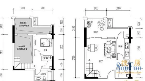
户型解读问经纪人
格局方正,采光好,房间朝南,视线无遮挡。
周边配套
地址:潮连嘉丽大道8号
交通综合评分
查看全部4.0
“一般”
超过江门0.0%的小区
-
地铁公交
10.0
-
10186元/㎡
本月挂牌均价
-
3.06%
环比上月
买房加房产交流群,省钱不踩雷
3000+人正在热聊
加入群聊
- 免费咨询
- 专业服务
- 区域解读
- 户型分析
免责声明:房源信息由网站用户提供,其真实性、合法性由信息提供者负责,最终以政府部门登记备案为准。本网站不声明或保证内容之正确性和可靠性,购买该房屋时,请谨慎核查。入学情况仅凭历史经验总结,在此不承诺升学事宜。请您在签订合同之前,切勿支付任何形式的费用,以免上当受骗。


