浙二 省厅 标准一室一厅 厨卫全明 精装修
-
119万
总价
-
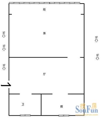
1室1厅1卫
户型
-
46.98㎡
建筑面积
买房加房产交流群,省钱不踩雷
3000+人正在热聊
加入群聊
-
单价
25330元/平米
- 挂牌价格解析
-
楼层
高楼层/7层
- 咨询楼层
-
套内
39.91㎡
- 咨询套内使用面积
-
楼型
板楼
-
朝向
南北
-
装修
其他
-
供暖
自供暖
-
年代
1991
-
发布
2025-10-30
-
地铁
距1号线(下沙江滨-湘湖)城站约785米
-
咨询总首付
首付约35.5万
首付税费及佣金情况 -
深度测评
小区状元弄(上城-小营)
-
更多
楼户比、楼层高度、交易历史、抵押信息
-
核验详情
核验码251027VO611773
周边配套
地址:民生路42号
交通综合评分
查看全部5.5
“一般”
超过杭州0.7%的小区
-
地铁公交
10.0
-
城际交通
5.0
本月均价 27163元/m²
环比上月 下跌 6.79%
同比去年 下跌 14.57%
猜你喜欢
同小区其它房源
户型齐全,主打户型方正,明卫一居
状元弄户型主要有40平-44平的户型方正,明卫的一居 、58平-66平的户型方正,客厅朝南的二居 、86平-86平的户型方正,明卫,明厨,客厅朝南的三居 。
*获取完整户型报告,同时会有免费语音讲解服务
-
36704元/㎡
本月挂牌均价
-
0.65%
环比上月
买房加房产交流群,省钱不踩雷
3000+人正在热聊
加入群聊
免责声明:房源信息由网站用户提供,其真实性、合法性由信息提供者负责,最终以政府部门登记备案为准。本网站不声明或保证内容之正确性和可靠性,购买该房屋时,请谨慎核查。入学情况仅凭历史经验总结,在此不承诺升学事宜。请您在签订合同之前,切勿支付任何形式的费用,以免上当受骗。



