兰园方正大两居 南北通风 带阁楼
-
240万
总价
-
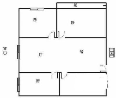
2室2厅1卫
户型
-
84.6㎡
建筑面积
买房加房产交流群,省钱不踩雷
3000+人正在热聊
加入群聊
-
单价
28369元/平米
- 挂牌价格解析
-
楼层
高楼层/7层
- 咨询楼层
-
套内
77.27㎡
- 咨询套内使用面积
-
楼型
板楼
-
朝向
南
-
装修
其他
-
供暖
自供暖
-
年代
2002
-
发布
2024-08-12
-
地铁
距5号线西文街站约899米
-
咨询总首付
首付约69万
首付税费及佣金情况 -
深度测评
小区三塘兰园(拱墅-三塘)
-
更多
楼户比、楼层高度、交易历史、抵押信息
-
核验码
240806NV470688
房源描述(1)
周边配套
地址:香积寺路与再行路交叉口
交通综合评分
查看全部5.3
“一般”
超过杭州41.4%的小区
-
地铁公交
10.0
-
城际交通
4.5
本月均价 30606元/m²
环比上月 下跌 0.64%
同比去年 下跌 5.31%
猜你喜欢
同小区其它房源
户型齐全,主打户型方正,明卫,客厅朝南,双阳台,主卧朝南三居
三塘兰园户型主要有74平-126平的户型方正,明卫,客厅朝南,双阳台,主卧朝南的三居 、57平-77平的户型方正,明厨,客厅朝南的二居 、38平-38平的户型方正,明厨的一居 。
*获取完整户型报告,同时会有免费语音讲解服务
-
31962元/㎡
本月挂牌均价
-
0.75%
环比上月
买房加房产交流群,省钱不踩雷
3000+人正在热聊
加入群聊
- 免费咨询
- 专业服务
- 区域解读
- 户型分析
免责声明:房源信息由网站用户提供,其真实性、合法性由信息提供者负责,最终以政府部门登记备案为准。本网站不声明或保证内容之正确性和可靠性,购买该房屋时,请谨慎核查。入学情况仅凭历史经验总结,在此不承诺升学事宜。请您在签订合同之前,切勿支付任何形式的费用,以免上当受骗。


