嘉绿苑 毛家桥公寓 两房朝南 低总价
-
250万
总价
-
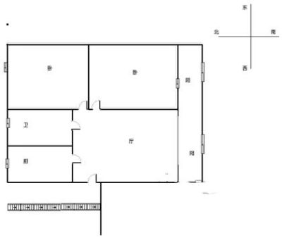
2室1厅1卫
户型
-
53.48㎡
建筑面积
买房加房产交流群,省钱不踩雷
3000+人正在热聊
加入群聊
-
单价
46746元/平米
- 挂牌价格解析
-
楼层
中层/11层
- 咨询楼层
-
套内
暂无数据
- 咨询套内使用面积
-
楼型
板楼
-
朝向
南
-
装修
简装修
-
年代
2005
-
发布
2026-03-11
-
地铁
距2号线古翠路站约434米
-
咨询总首付
首付约72.1万
首付税费及佣金情况 -
深度测评
小区毛家桥公寓(西湖-文苑)
-
更多
楼户比、楼层高度、交易历史、抵押信息
-
核验码
220620BO639425
房源描述(1)
周边配套
地址:古翠路与文二西路交叉口
交通综合评分
查看全部6.1
“较好”
超过杭州52.0%的小区
-
地铁公交
10.0
-
驾车出行
7.0
本月均价 41106元/m²
环比上月 下跌 4.87%
同比去年 下跌 15.49%
猜你喜欢
同小区其它房源
户型齐全,主打户型方正,明厨,明卫,双阳台,双卧朝南三居
毛家桥公寓户型主要有115平-143平的户型方正,明厨,明卫,双阳台,双卧朝南的三居 、53平-87平的户型方正,明卫,明厨,客厅朝南的二居 。
*获取完整户型报告,同时会有免费语音讲解服务
-
38806元/㎡
本月挂牌均价
-
1.16%
环比上月
买房加房产交流群,省钱不踩雷
3000+人正在热聊
加入群聊
- 免费咨询
- 专业服务
- 区域解读
- 户型分析
免责声明:房源信息由网站用户提供,其真实性、合法性由信息提供者负责,最终以政府部门登记备案为准。本网站不声明或保证内容之正确性和可靠性,购买该房屋时,请谨慎核查。入学情况仅凭历史经验总结,在此不承诺升学事宜。请您在签订合同之前,切勿支付任何形式的费用,以免上当受骗。


