南向四居好房,运河印象104平诚售
-
270万元
总价
-
4室2厅2卫
户型
-
104㎡
建筑面积
买房加房产交流群,省钱不踩雷
3000+人正在热聊
加入群聊
-
单价
25962元/平米
- 挂牌价格解析
-
楼层
中层/16层
- 咨询楼层
-
套内
暂无数据
- 咨询套内使用面积
-
朝向
南
-
年代
2018
-
发布
2025-10-12
-
地铁
暂无数据
-
咨询总首付
首付约91.7万
首付税费及佣金情况 -
深度测评
小区迪凯运河印象(余杭-良渚)
-
更多
楼户比、楼层高度、交易历史、抵押信息
业主自评
-
wpp0000
加入房天下3531天
接电时间:9:00-24:00
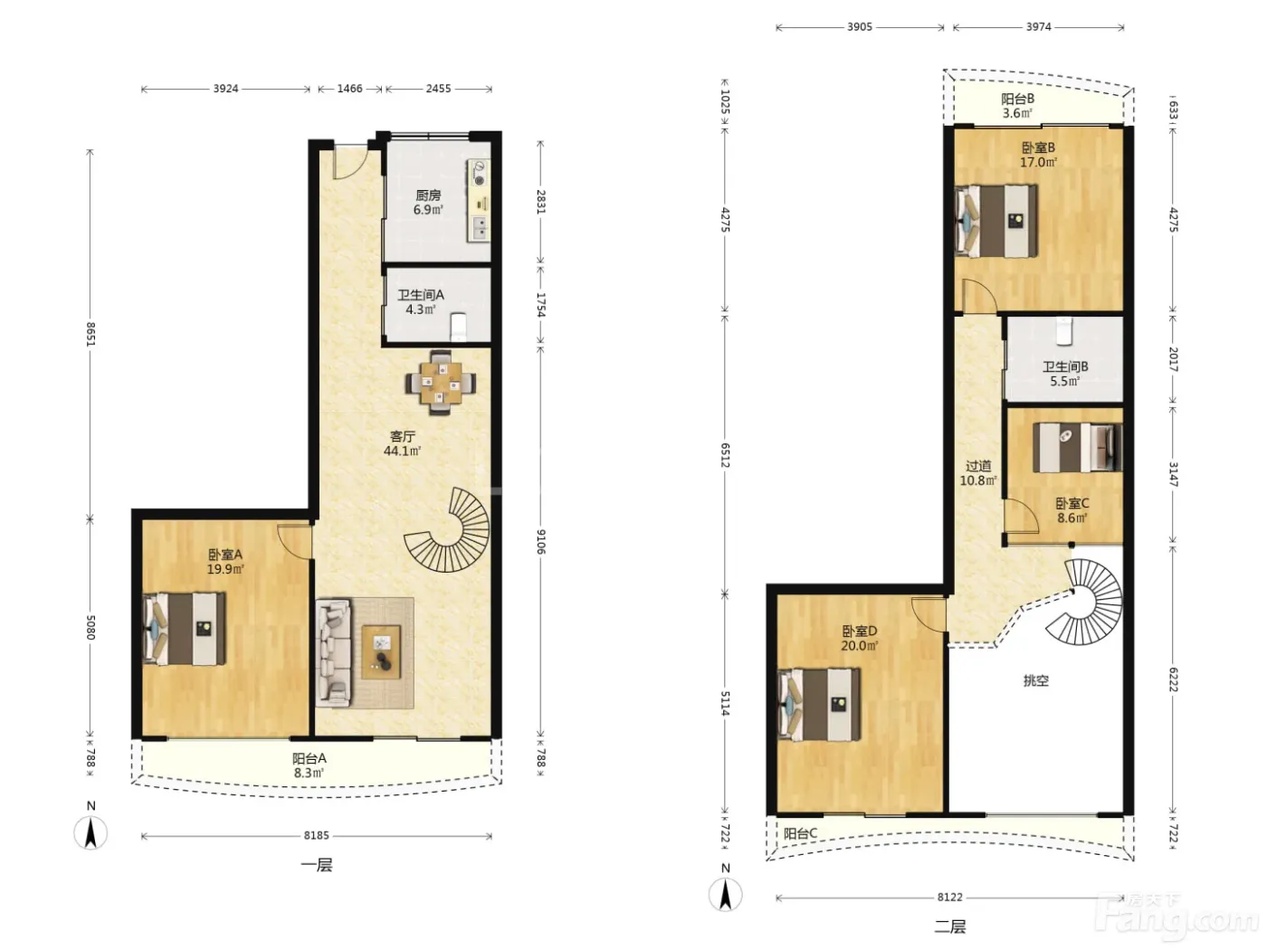
这套运河印象的房子住了好几年,现在要搬去外地实在舍不得。104平的四室两厅两卫,南北通透的格局特别舒服,主卧和客厅都朝南,阳光从早晒到晚,冬天屋里暖洋洋的。 小区就在好运街93号,闹中取静的位置特别方便。楼下步行五**就是运河边,晚饭后散步特别惬意。物业打理得很用心,绿化和公共区域都保持得干干净净。 房子是标准的大四房设计,两个卫生间都做了干湿分离。客厅开间将近4米,摆完沙发还能放下一整面书柜。厨房带生活阳台,晾晒或者堆放杂物都很方便。 装修是五年前自己住的精装,地暖和新风系统都配齐了。要不是工作调动真不想卖,这个价位在运河板块很难找到这么方正的四房了。欢迎随时来看房,周末都在家。
这套运河印象的房子住了好几年,现在要搬去外地实在舍不得。104平的四室两厅两卫,南北通透的格局特别舒服,主卧和客厅都朝南,阳光从早晒到晚,冬天屋里暖洋洋的。 小区就在好运街93号,闹中取静的位置特别方便。楼下步行五**就是运河边,晚饭后散步特别惬意。物业打理得很用心,绿化和公共区域都保持得干干净净。 房子是标准的大四房设计,两个卫生间都做了干湿分离。客厅开间将近4米,摆完沙发还能放下一整面书柜。厨房带生活阳台,晾晒或者堆放杂物都很方便。 装修是五年前自己住的精装,地暖和新风系统都配齐了。要不是工作调动真不想卖,这个价位在运河板块很难找到这么方正的四房了。欢迎随时来看房,周末都在家。
周边配套
地址:上塘高架勾运路出口,好运路南
交通综合评分
查看全部7.3
“较好”
超过杭州88.4%的小区
-
地铁公交
10.0
-
驾车出行
7.0
-
城际交通
4.0
本月均价 18786元/m²
环比上月 下跌 0.57%
同比去年 下跌 4.83%
猜你喜欢
同小区其它房源
-
26003元/㎡
本月挂牌均价
-
1.52%
环比上月
买房加房产交流群,省钱不踩雷
3000+人正在热聊
加入群聊
联系业主
免责声明:房源信息由网站用户提供,其真实性、合法性由信息提供者负责,最终以政府部门登记备案为准。本网站不声明或保证内容之正确性和可靠性,购买该房屋时,请谨慎核查。入学情况仅凭历史经验总结,在此不承诺升学事宜。请您在签订合同之前,切勿支付任何形式的费用,以免上当受骗。

