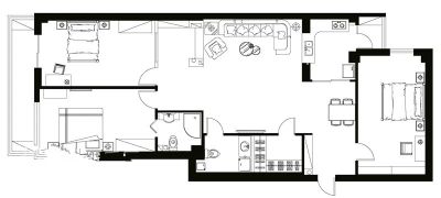
龙兴大厦 3室1厅 东 南 西 北
-
185万
总价
-
3室1厅
户型
-
131㎡
建筑面积
买房加房产交流群,省钱不踩雷
3000+人正在热聊
加入群聊
-
单价
14123元/平米
- 挂牌价格解析
-
楼层
高楼层/20层
- 咨询楼层
-
套内
暂无数据
- 咨询套内使用面积
-
楼型
板楼
-
朝向
东西南北
-
装修
简装
-
供暖
集中供暖
-
发布
2025-10-24
-
地铁
距1号线医大一院站约430米
-
深度测评
小区龙兴大厦(南岗-秋林)
-
更多
楼户比、楼层高度、交易历史、抵押信息
周边配套
地址:南岗区邮政街33-5号
交通综合评分
查看全部5.3
“一般”
超过哈尔滨49.3%的小区
-
地铁公交
10.0
-
城际交通
4.5
本月均价 11804元/m²
环比上月 下跌 3.48%
同比去年 下跌 8.52%
猜你喜欢
同小区其它房源
户型齐全,主打户型方正,主卧朝南三居
龙兴大厦户型主要有117平-173平的户型方正,主卧朝南的三居 、78平-123平的户型方正的二居 。
*获取完整户型报告,同时会有免费语音讲解服务
-
14466元/㎡
本月挂牌均价
-
0.36%
环比上月
买房加房产交流群,省钱不踩雷
3000+人正在热聊
加入群聊
免责声明:房源信息由网站用户提供,其真实性、合法性由信息提供者负责,最终以政府部门登记备案为准。本网站不声明或保证内容之正确性和可靠性,购买该房屋时,请谨慎核查。入学情况仅凭历史经验总结,在此不承诺升学事宜。请您在签订合同之前,切勿支付任何形式的费用,以免上当受骗。



