生活设施齐全,出行方便,阳明早夜市
-
20万
总价
-
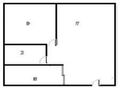
1室
户型
-
25.2㎡
建筑面积
买房加房产交流群,省钱不踩雷
3000+人正在热聊
加入群聊
-
单价
7937元/平米
- 挂牌价格解析
-
楼层
中楼层/5层
- 咨询楼层
-
套内
17.38㎡
- 咨询套内使用面积
-
楼型
板楼
-
朝向
西
-
装修
简装
-
供暖
集中供暖
-
发布
2023-08-13
-
深度测评
小区建国南二道街小区(道里-哈药路)
-
更多
楼户比、楼层高度、交易历史、抵押信息
周边配套
地址:建国南二道街与哈药路交口
交通综合评分
查看全部4.9
“一般”
超过哈尔滨63.0%的小区
-
地铁公交
9.0
-
城际交通
4.5
本月均价 5591元/m²
环比上月 下跌 3.3%
同比去年 下跌 2.2%
猜你喜欢
同小区其它房源
户型齐全,主打二居
建国南二道街小区户型主要有56平-98平的的二居 、36平-37平的户型方正,主卧朝南的一居 、101平-138平的户型方正,双阳台,主卧朝南的三居 。
*获取完整户型报告,同时会有免费语音讲解服务
-
6295元/㎡
本月挂牌均价
-
0.56%
环比上月
买房加房产交流群,省钱不踩雷
3000+人正在热聊
加入群聊
免责声明:房源信息由网站用户提供,其真实性、合法性由信息提供者负责,最终以政府部门登记备案为准。本网站不声明或保证内容之正确性和可靠性,购买该房屋时,请谨慎核查。入学情况仅凭历史经验总结,在此不承诺升学事宜。请您在签订合同之前,切勿支付任何形式的费用,以免上当受骗。



