精装修 采光充足 格局大 售价便宜
-
178万
总价
-
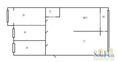
3室1厅
户型
-
185.67㎡
建筑面积
买房加房产交流群,省钱不踩雷
3000+人正在热聊
加入群聊
-
单价
9587元/平米
- 挂牌价格解析
-
楼层
高楼层/15层
- 咨询楼层
-
套内
153.12㎡
- 咨询套内使用面积
-
楼型
塔楼
-
朝向
东西
-
装修
其他
-
供暖
集中供暖
-
发布
2021-10-10
-
地铁
距3号线征仪路站约455米
-
深度测评
小区肿瘤医院家属楼(南岗-征仪路)
-
更多
楼户比、楼层高度、交易历史、抵押信息
周边配套
地址:南岗区征仪路423号
交通综合评分
查看全部5.3
“一般”
超过哈尔滨1.2%的小区
-
地铁公交
10.0
-
城际交通
4.5
本月均价 7997元/m²
环比上月 下跌 0.1%
同比去年 下跌 8.36%
猜你喜欢
同小区其它房源
-
7242元/㎡
本月挂牌均价
-
0.29%
环比上月
买房加房产交流群,省钱不踩雷
3000+人正在热聊
加入群聊
免责声明:房源信息由网站用户提供,其真实性、合法性由信息提供者负责,最终以政府部门登记备案为准。本网站不声明或保证内容之正确性和可靠性,购买该房屋时,请谨慎核查。入学情况仅凭历史经验总结,在此不承诺升学事宜。请您在签订合同之前,切勿支付任何形式的费用,以免上当受骗。



