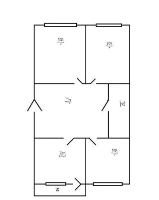
南北三室户型,无冷不等,格局好,房子板正
-
79.8万
总价
-
3室1厅
户型
-
102㎡
建筑面积
买房加房产交流群,省钱不踩雷
3000+人正在热聊
加入群聊
-
单价
7824元/平米
- 挂牌价格解析
-
楼层
高楼层/8层
- 咨询楼层
-
套内
暂无数据
- 咨询套内使用面积
-
楼型
板楼
-
朝向
南北
-
装修
其他
-
供暖
集中供暖
-
发布
2022-07-14
-
地铁
距2号线省医院站约1185米
-
深度测评
小区民生东六道街38号小区(香坊-省医院)
-
更多
楼户比、楼层高度、交易历史、抵押信息
周边配套
地址:民生东六道街38号
交通综合评分
查看全部5.5
“一般”
超过哈尔滨45.8%的小区
-
地铁公交
10.0
-
城际交通
5.0
本月均价 8757元/m²
环比上月 下跌 2%
同比去年 下跌 7.02%
猜你喜欢
同小区其它房源
户型齐全,主打户型方正,明厨,主卧朝南二居
民生东六道街38号小区户型主要有53平-102平的户型方正,明厨,主卧朝南的二居 、101平-108平的明厨的三居 、43平-43平的户型方正,明厨,主卧朝南的一居 。
*获取完整户型报告,同时会有免费语音讲解服务
-
8355元/㎡
本月挂牌均价
-
0.12%
环比上月
买房加房产交流群,省钱不踩雷
3000+人正在热聊
加入群聊
免责声明:房源信息由网站用户提供,其真实性、合法性由信息提供者负责,最终以政府部门登记备案为准。本网站不声明或保证内容之正确性和可靠性,购买该房屋时,请谨慎核查。入学情况仅凭历史经验总结,在此不承诺升学事宜。请您在签订合同之前,切勿支付任何形式的费用,以免上当受骗。



