南岗区哈工大西大直街电梯房交通便利可以公积金
-
139万
总价
-
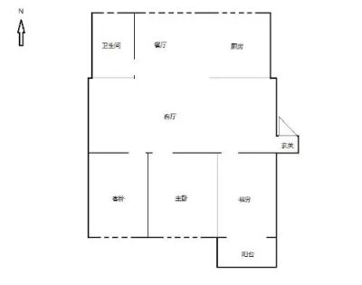
3室1厅
户型
-
144㎡
建筑面积
买房加房产交流群,省钱不踩雷
3000+人正在热聊
加入群聊
-
单价
9653元/平米
- 挂牌价格解析
-
楼层
低楼层/17层
- 咨询楼层
-
套内
暂无数据
- 咨询套内使用面积
-
楼型
塔楼
-
朝向
南北
-
装修
简装
-
供暖
集中供暖
-
发布
2025-02-08
-
地铁
距1号线哈工大站约962米
-
深度测评
小区尚品公寓(南岗-教化广场)
-
更多
楼户比、楼层高度、交易历史、抵押信息
周边配套
地址:满洲里街与货栈街交汇处
交通综合评分
查看全部5.3
“一般”
超过哈尔滨34.2%的小区
-
地铁公交
10.0
-
城际交通
4.5
本月均价 7071元/m²
环比上月 下跌 5.53%
同比去年 下跌 2.17%
猜你喜欢
同小区其它房源
户型齐全,主打户型方正,明厨,主卧朝南二居
尚品公寓户型主要有50平-144平的户型方正,明厨,主卧朝南的二居 、33平-44平的户型方正,明厨,主卧朝南的一居 。
*获取完整户型报告,同时会有免费语音讲解服务
-
8669元/㎡
本月挂牌均价
-
0.24%
环比上月
买房加房产交流群,省钱不踩雷
3000+人正在热聊
加入群聊
免责声明:房源信息由网站用户提供,其真实性、合法性由信息提供者负责,最终以政府部门登记备案为准。本网站不声明或保证内容之正确性和可靠性,购买该房屋时,请谨慎核查。入学情况仅凭历史经验总结,在此不承诺升学事宜。请您在签订合同之前,切勿支付任何形式的费用,以免上当受骗。



