一室小户型 位置佳 采光好 价格美
-
42万
总价
-
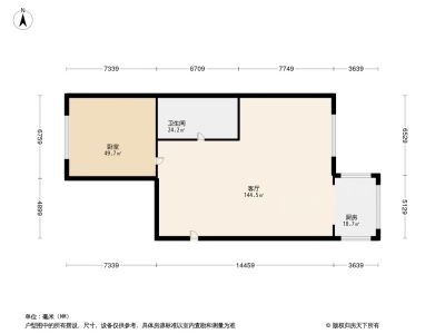
1室1厅
户型
-
37.15㎡
建筑面积
买房加房产交流群,省钱不踩雷
3000+人正在热聊
加入群聊
-
单价
11306元/平米
- 挂牌价格解析
-
楼层
高楼层/8层
- 咨询楼层
-
套内
暂无数据
- 咨询套内使用面积
-
楼型
板楼
-
朝向
西
-
装修
简装
-
供暖
集中供暖
-
发布
2022-10-27
-
深度测评
小区民香小区(香坊-省医院)
-
更多
楼户比、楼层高度、交易历史、抵押信息
周边配套
地址:香坊区民生路26号
交通综合评分
查看全部5.3
“一般”
超过哈尔滨45.5%的小区
-
地铁公交
10.0
-
城际交通
4.5
本月均价 8770元/m²
环比上月 下跌 1.18%
同比去年 下跌 6.34%
猜你喜欢
同小区其它房源
户型齐全,主打明厨二居
民香小区户型主要有47平-136平的明厨的二居 、87平-176平的明厨,客厅朝南,双阳台的三居 、36平-62平的明厨的一居 。
*获取完整户型报告,同时会有免费语音讲解服务
-
8355元/㎡
本月挂牌均价
-
0.12%
环比上月
买房加房产交流群,省钱不踩雷
3000+人正在热聊
加入群聊
免责声明:房源信息由网站用户提供,其真实性、合法性由信息提供者负责,最终以政府部门登记备案为准。本网站不声明或保证内容之正确性和可靠性,购买该房屋时,请谨慎核查。入学情况仅凭历史经验总结,在此不承诺升学事宜。请您在签订合同之前,切勿支付任何形式的费用,以免上当受骗。



