看房找我香榭丽苑三室明厅高层电梯房出门会展红博地铁
-
128万
总价
-
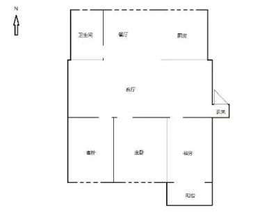
3室1厅
户型
-
138.2㎡
建筑面积
买房加房产交流群,省钱不踩雷
3000+人正在热聊
加入群聊
-
单价
9262元/平米
- 挂牌价格解析
-
楼层
中楼层/20层
- 咨询楼层
-
套内
暂无数据
- 咨询套内使用面积
-
楼型
塔楼
-
朝向
西南
-
装修
其他
-
供暖
集中供暖
-
发布
2023-11-30
-
地铁
距3号线海河东路站约1089米
-
深度测评
小区香榭丽苑(南岗-黄河路)
-
更多
楼户比、楼层高度、交易历史、抵押信息
周边配套
地址:黄河路136号
交通综合评分
查看全部5.5
“一般”
超过哈尔滨17.3%的小区
-
地铁公交
10.0
-
城际交通
5.0
本月均价 7396元/m²
环比上月 下跌 0.86%
同比去年 下跌 4.56%
猜你喜欢
同小区其它房源
户型齐全,主打户型方正,明卫二居
香榭丽苑户型主要有99平-125平的户型方正,明卫的二居 、120平-138平的户型方正,明卫,客厅朝南,双卧朝南的三居 、98平-100平的户型方正,明厨的一居 。
*获取完整户型报告,同时会有免费语音讲解服务
-
7547元/㎡
本月挂牌均价
-
0.91%
环比上月
买房加房产交流群,省钱不踩雷
3000+人正在热聊
加入群聊
免责声明:房源信息由网站用户提供,其真实性、合法性由信息提供者负责,最终以政府部门登记备案为准。本网站不声明或保证内容之正确性和可靠性,购买该房屋时,请谨慎核查。入学情况仅凭历史经验总结,在此不承诺升学事宜。请您在签订合同之前,切勿支付任何形式的费用,以免上当受骗。



