铁岭校电梯房,满五**,储物空间充足,闹中取静可拎包入住
-
99万元
总价
-
2室1厅1卫
户型
-
56.55㎡
建筑面积
买房加房产交流群,省钱不踩雷
3000+人正在热聊
加入群聊
-
单价
17507元/平米
- 挂牌价格解析
-
楼层
中层/18层
- 咨询楼层
-
套内
暂无数据
- 咨询套内使用面积
-
朝向
西北
-
年代
1995
-
发布
2025-09-20
-
地铁
距1号线医大一院站约442米
-
深度测评
小区龙江街28号小区(南岗-儿童公园)
-
更多
楼户比、楼层高度、交易历史、抵押信息
业主自评
-
mmyypp2006
加入房天下4344天
接电时间:09:00-20:00
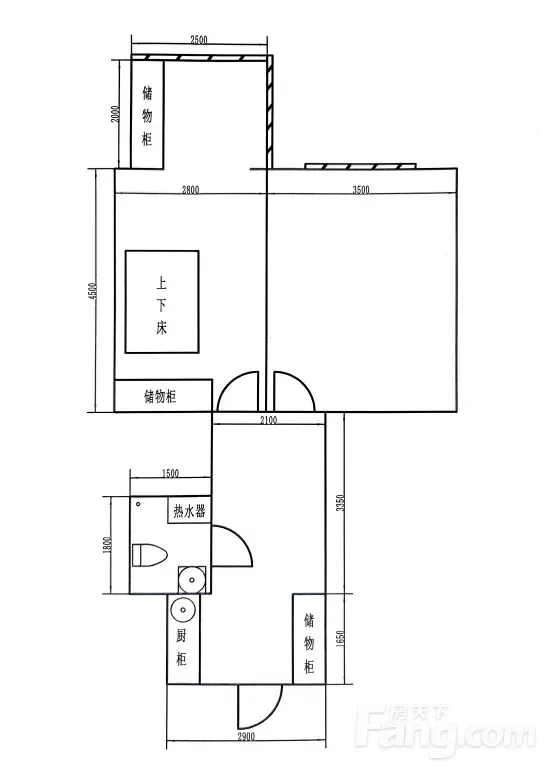
满五且**住房,使用面积将近50,房东将室内空间布局做到了最合理的设计,可容纳二孩家庭。室内储物空间充足,除了定制的柜子外,两张床下都可以储物,室内设施维护保养状况非常好。房屋闹中取静,虽然朝向西北,但无遮挡,室内明亮,阳台内部做了双层保温层,塑钢窗都是换的三层玻璃的,静音效果好,可拎包入住。周边交通、购物、休闲娱乐、上学、医疗等都极为便利。 房东期待有缘人能够继续爱护这处房子,并享受它带来的种种便利,欣赏一年四季光影的变化。 付出爱才能收获幸福,爱护家,就是在创造自己幸福的港湾。
满五且**住房,使用面积将近50,房东将室内空间布局做到了最合理的设计,可容纳二孩家庭。室内储物空间充足,除了定制的柜子外,两张床下都可以储物,室内设施维护保养状况非常好。房屋闹中取静,虽然朝向西北,但无遮挡,室内明亮,阳台内部做了双层保温层,塑钢窗都是换的三层玻璃的,静音效果好,可拎包入住。周边交通、购物、休闲娱乐、上学、医疗等都极为便利。 房东期待有缘人能够继续爱护这处房子,并享受它带来的种种便利,欣赏一年四季光影的变化。 付出爱才能收获幸福,爱护家,就是在创造自己幸福的港湾。
周边配套
地址:龙江街28号
交通综合评分
查看全部5.5
“一般”
超过哈尔滨50.1%的小区
-
地铁公交
10.0
-
城际交通
5.0
本月均价 11273元/m²
环比上月 上涨 3%
同比去年 下跌 7.99%
-
11444元/㎡
本月挂牌均价
-
0.02%
环比上月
买房加房产交流群,省钱不踩雷
3000+人正在热聊
加入群聊
联系业主
免责声明:房源信息由网站用户提供,其真实性、合法性由信息提供者负责,最终以政府部门登记备案为准。本网站不声明或保证内容之正确性和可靠性,购买该房屋时,请谨慎核查。入学情况仅凭历史经验总结,在此不承诺升学事宜。请您在签订合同之前,切勿支付任何形式的费用,以免上当受骗。

