保亭庄园丽都 热带雨林 温泉泳池 异国风情 拎包两房
-
85万
总价
-
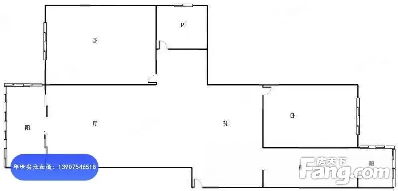
2室2厅1卫
户型
-
81㎡
建筑面积
买房加房产交流群,省钱不踩雷
3000+人正在热聊
-
单价
10494元/平米
- 挂牌价格解析
-
楼层
高层/15层
- 咨询楼层
-
套内
80㎡
- 咨询套内使用面积
-
楼型
板楼
-
朝向
南北
-
装修
精装修
-
年代
2017
-
发布
2025-11-04
-
深度测评
小区庄园丽都(保亭-保亭)
-
更多
楼户比、楼层高度、交易历史、抵押信息
房源描述(1)
-
核心卖点问经纪人
庄园丽都项目是海南闽庄园房开发有限公司鼎立开发的集和住宅为一体的旅游房项目,项目秉承闽庄园基因,把保亭独有的温泉文化、温泉经济与房开发结合起来,将温泉引入小区,大家在小区内就能享受到天然温泉给您带来的舒适感受。项目位于海南省保亭县西环路东侧,迎宾路北侧,交通区位明显。黄道婆主题热带雨林公园、海航迎宾馆酒店、凤凰公务员小区、农垦花园小区、沁园小区,10生活圈内聚集了农贸市场、、市、酒店、车站等生活配套设施,是保亭县城内不可多遇的开发热地!
-
业主心态问经纪人
在海南选择小蔡看房买房的: 1.小蔡海南6年多房产,从业经验丰富! 2.小蔡手里有很多老房东房源,相对划算很多,不用担心,小蔡会有好的办法帮您解决! 3.小蔡爱交朋友,人脉广,手上有很多开发商预留内部房,更名房,工程房,及优质二手房,不需要额外费用! 4.小蔡为人随和,爱说实话,会给您分析利弊! 5.小蔡做事认真,对人真诚,一直谨记老妈的一句话:在外面,吃亏是福!所以什么机票,食宿,旅游等等我都会比任何人做的更好,能让您花少的钱,开心而来,满意而归! 6.小蔡手机号和:相信您的决断选择小蔡,会让您感受到不一样的房产
-
小区配套问经纪人
声明: 1, 小蔡主要负责海口,澄迈,临高,儋州,文昌,三亚,陵水,万宁,定安等市县! 2, 小蔡人脉广,手上有很多各个区域,各个楼盘开发商预留内部更名房,工程房等等以及优质二手房!这些房源都是不需要额外费用,而且会低于市场价很多! 3, 小蔡总是以一颗真诚的心对待每一个人,好就是好,不好的就是不好,总是把事实摆在明面,说我实在也好“傻”也吧无所谓,只要问心无愧才要! 4, 小蔡可以自豪的说在海南论人品能力经验过小蔡的不是很多,只选对的,不选贵的! 5, 小蔡手机号和:选择大于努力!
-
服务介绍问经纪人
本人从事房多年,公司有大量好房源,欢迎进入我的店铺查看,欢迎随时电话咨询,相信我的专业,为您置业安家保驾护航。
-
税费分析房贷计算
购房按揭所需材料: 1 夫妻双方身份证原件与复印件 2夫妻双方半年流水 3原件复印件 4工资证明(不同银行版本不一样) 购买新房主要税费: 契税:90平以内:1% ;90以上:1.5% 房屋维修资金:建筑面积x60元/平 燃气入户开通费:3000元左右 房屋产权工本费300元 注:以上收费仅供参考,均以相关部门终规定为准
周边配套
本月均价 10494元/m²
环比上月 持平
同比去年 上涨 1.01%
猜你喜欢
同小区其它房源
户型齐全,主打南北通透,全明格局,户型方正,动静分离,采光充足,客厅朝南,主卧带卫,明厨明卫二居
庄园丽都户型主要有63平-129平的南北通透,全明格局,户型方正,动静分离,采光充足,客厅朝南,主卧带卫,明厨明卫的二居 、40平-48平的露台,南北通透,厨卫不对门的一居 。
*获取完整户型报告,同时会有免费语音讲解服务
-
9679元/㎡
本月挂牌均价
-
0.44%
环比上月
买房加房产交流群,省钱不踩雷
3000+人正在热聊
- 免费咨询
- 专业服务
- 区域解读
- 户型分析


