杏林小区南向两居,阳光满屋,210万安家
-
210万元
总价
-
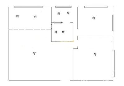
2室1厅1卫
户型
-
47㎡
建筑面积
买房加房产交流群,省钱不踩雷
3000+人正在热聊
加入群聊
-
单价
44681元/平米
- 挂牌价格解析
-
楼层
中层/9层
- 咨询楼层
-
套内
暂无数据
- 咨询套内使用面积
-
朝向
南
-
年代
1997
-
发布
2025-09-08
-
地铁
距2号线江南西站约931米
-
咨询总首付
首付约54.1万
首付税费及佣金情况 -
深度测评
小区杏林小区(海珠-江南西)
-
更多
楼户比、楼层高度、交易历史、抵押信息
业主自评
-
soufun-s1019164562
加入房天下4123天
接电时间:09:00-22:00
这套杏林小区的两居室,是我住了多年的温馨小家。47平的面积,设计得特别合理,两间卧室都朝南,阳光从早到晚洒进来,冬天屋里暖洋洋的,连晾衣服都干得快。客厅虽然不大,但方正好用,摆个沙发和小餐桌绰绰有余,朋友来了也能坐得开。 小区位置没得挑,杏林大街主干道旁,出门买菜、散步特别方便。楼道干净,邻居大多是住了很多年的老住户,氛围和睦。房子是正经住宅,安静又踏实,适合小家庭或想住得舒服的年轻人。 说实话,要不是工作调动,真舍不得搬。210万的价格,在周边同户型里算实在的。感兴趣的话,随时来看房,我带你转转,这房子住着有多舒心,一看就知道!
这套杏林小区的两居室,是我住了多年的温馨小家。47平的面积,设计得特别合理,两间卧室都朝南,阳光从早到晚洒进来,冬天屋里暖洋洋的,连晾衣服都干得快。客厅虽然不大,但方正好用,摆个沙发和小餐桌绰绰有余,朋友来了也能坐得开。 小区位置没得挑,杏林大街主干道旁,出门买菜、散步特别方便。楼道干净,邻居大多是住了很多年的老住户,氛围和睦。房子是正经住宅,安静又踏实,适合小家庭或想住得舒服的年轻人。 说实话,要不是工作调动,真舍不得搬。210万的价格,在周边同户型里算实在的。感兴趣的话,随时来看房,我带你转转,这房子住着有多舒心,一看就知道!
周边配套
地址:杏林大街1号
交通综合评分
查看全部6.1
“较好”
超过广州16.3%的小区
-
地铁公交
10.0
-
驾车出行
7.0
本月均价 39055元/m²
环比上月 下跌 0.72%
同比去年 下跌 3.51%
猜你喜欢
同小区其它房源
户型齐全,主打明厨,明卫,客厅朝南三居
杏林小区户型主要有71平-96平的明厨,明卫,客厅朝南的三居 、44平-72平的户型方正,明卫,客厅朝南的二居 。
*获取完整户型报告,同时会有免费语音讲解服务
-
36837元/㎡
本月挂牌均价
-
1.8%
环比上月
买房加房产交流群,省钱不踩雷
3000+人正在热聊
加入群聊
联系业主
免责声明:房源信息由网站用户提供,其真实性、合法性由信息提供者负责,最终以政府部门登记备案为准。本网站不声明或保证内容之正确性和可靠性,购买该房屋时,请谨慎核查。入学情况仅凭历史经验总结,在此不承诺升学事宜。请您在签订合同之前,切勿支付任何形式的费用,以免上当受骗。

