茅台广场 4室2厅 275.91平
-
480万
总价
-
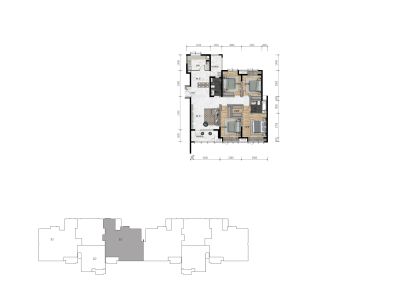
4室2厅1卫
户型
-
275.91㎡
建筑面积
买房加房产交流群,省钱不踩雷
3000+人正在热聊
-
单价
17397元/平米
- 挂牌价格解析
-
楼层
高层/39层
- 咨询楼层
-
套内
274.91㎡
- 咨询套内使用面积
-
楼型
板楼
-
朝向
东
-
装修
精装修
-
年代
0
-
发布
2026-01-27
-
地铁
距1号线新寨站约1150米
-
深度测评
小区茅台广场(观山湖-碧海花园)
-
更多
楼户比、楼层高度、交易历史、抵押信息
房源描述(1)
-
核心卖点问经纪人
茅台广场总价低满5年,房主方便看,有车位,采光好 客厅落地窗,房子干净 茅台广场 房子0年建成,4室2厅,户型方正,带落地窗,独立餐厅位置,此房通透好冬暖夏凉,采光好。 茅台广场 精装修,业主一直保持的干净,如果对装修不是特别有要求,可以不用装修,户型方正
-
业主心态问经纪人
房东置换,诚心出售,可以再谈,欢迎看房,随时恭候。
-
小区配套问经纪人
小区地理位置佳,绿化环境优越整洁,居民素质高,物业管理完善,适宜居住
-
服务介绍问经纪人
本人做房产多年,一直本着专业的房产知识,为您服务,我会在短的时间内帮您买好满意的房子,不让您错失任何好房子,更不让您每天为买房的事烦心,欢迎随时拨打我电话。
-
税费分析房贷计算
关于本房的税费信息情况,请电话联系我,我将详细的为您讲解!
-
户型解读问经纪人
房屋拥有相对宽松的尺寸,布局通透,动静分离,设计豪华
周边配套
交通综合评分
查看全部超过贵阳0.0%的小区
-
地铁公交
10.0
-
城际交通
4.0
本月均价 暂无均价
环比上月 持平
同比去年 持平 持平
猜你喜欢
同小区其它房源
户型齐全,主打全明格局,户型方正四居
茅台广场户型主要有130平-190平的全明格局,户型方正的四居 、129平-130平的全明格局,户型方正的三居 。
*获取完整户型报告,同时会有免费语音讲解服务
-
10323元/㎡
本月挂牌均价
-
0.39%
环比上月
买房加房产交流群,省钱不踩雷
3000+人正在热聊
- 免费咨询
- 专业服务
- 区域解读
- 户型分析


