南北通透 173平 金熙府 中装 3室 诚心出售 价格可议
-
138万
总价
-
3室2厅2卫
户型
-
168㎡
建筑面积
买房加房产交流群,省钱不踩雷
3000+人正在热聊
-
单价
8214元/平米
- 挂牌价格解析
-
楼层
高层/28层
- 咨询楼层
-
套内
167㎡
- 咨询套内使用面积
-
楼型
板楼
-
朝向
南
-
装修
中装修
-
年代
2004
-
发布
2025-11-13
-
地铁
距1号线河滨公园站约1170米
-
深度测评
小区金熙府(南明-兴关路)
-
更多
楼户比、楼层高度、交易历史、抵押信息
房源描述(1)
-
核心卖点问经纪人
1、本公司专业代理一手二手房买卖; 2、本公司代理的一手新房不收取任何费并且专车接送看房,主要代理楼盘如下:油榨街贵州首钢之光,天瀑 ;洋浦頭号山,景丽玉府,碧桂园等贵阳楼盘,中铁国际城,中铁太阳谷,中铁生态城等;保利等等贵阳名盘楼盘; 3、本公司承诺:凡在本公司购买一手房均享受统一的 ,合同与开发商直接签约,您不需要支付任何费用 ,专车免费接送。
-
业主心态问经纪人
1.业主随时有空配合过户。 2.证件齐全,无任何纠纷抵押; 3.要去外省发展 急需处理贵阳的房产 4.因家里诸多原因急售,房子无抵押有尾款。 5.房东诚心出售,工作调动 急置换 亲自委托,看房方便 6,证件齐全,无任何纠纷抵押; 温馨提示:二手房交易流程复杂,要找专业人事办理。
-
小区配套问经纪人
小区地理位置佳,绿化环境优越整洁,居民素质高,物业管理完善,适宜居住
-
服务介绍问经纪人
本公司服务简介: 贵州优居公司主要从事二手房买卖,商业房产、房屋租赁、代办产权过户、 、投资咨询等业务,我们的服务宗旨是真诚、用心、专注、快捷、放心,我公司承诺:免费登记、免费看房,在成交之前不收取任
-
税费分析房贷计算
关于本房的税费信息情况,请电话联系我,我将详细的为您讲解!
-
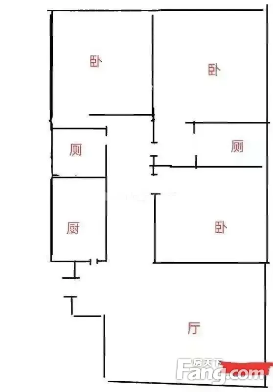
户型解读问经纪人
房屋拥有相对宽松的尺寸,布局通透,动静分离,设计豪华
周边配套
交通综合评分
查看全部超过贵阳59.3%的小区
-
地铁公交
10.0
本月均价 10579元/m²
环比上月 下跌 1.72%
同比去年 上涨 3.11%
猜你喜欢
同小区其它房源
户型齐全,主打户型方正,明卫,明厨,主卧朝南三居
金熙府户型主要有132平-198平的户型方正,明卫,明厨,主卧朝南的三居 、230平-296平的南北通透,露台,飘窗的五居 、165平-221平的户型方正,明卫的四居 。
*获取完整户型报告,同时会有免费语音讲解服务
-
7622元/㎡
本月挂牌均价
-
1.61%
环比上月
买房加房产交流群,省钱不踩雷
3000+人正在热聊
- 免费咨询
- 专业服务
- 区域解读
- 户型分析

