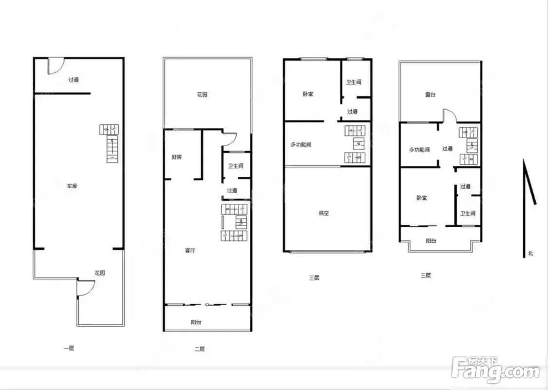
中铁阅山湖别墅 3室4厅3卫 毛坯 648万元
-
648万
总价
-
3室4厅3卫
户型
-
205.31㎡
建筑面积
买房加房产交流群,省钱不踩雷
3000+人正在热聊
加入群聊
-
单价
31562元/平米
- 挂牌价格解析
-
楼层
3层
- 咨询楼层
-
套内
暂无数据
- 咨询套内使用面积
-
楼型
独栋
-
朝向
南
-
装修
毛坯
-
年代
2025
-
发布
2025-04-22
-
地铁
距2号线观山西路约599米
-
深度测评
小区中铁阅山湖别墅(观山湖-阅山湖)
-
更多
楼户比、楼层高度、交易历史、抵押信息
房源描述(1)
-
核心卖点问经纪人
相信为您推荐的这套房子您一定会满意,赶快行动吧,先到先得! 房屋面积∶205.05平方米,朝向∶正南 1. 小区配备良好物业管理,让你享受宾至如归的服务; 2. 小区人文素质高,是您的居家的品质选择; 3. 小区环境安静舒适,让您拥有高品质的生活环境; 4. 小区绿化高,绿树成荫鸟语花香让您随时呼吸到新鲜空气。
-
业主心态问经纪人
房东置换,诚心出售,价格可以再谈,欢迎看房,随时恭候。
-
小区配套问经纪人
位置:小区地理位置佳,绿化率高,居民素质高 配套:有健身器材,小型篮球场,可供小区居民使用 车位:停车位充足,建有地上停车场和地下车库 保安:小区内24保安巡逻
-
服务介绍问经纪人
本人从事房地产多年,公司有大量好房源,欢迎进入我的店铺查看,欢迎随时电话咨询,相信我的专业,为您置业安家保驾护航。
周边配套
地址:观山西路与云潭北路交汇处
交通综合评分
查看全部6.7
“较好”
超过贵阳1.8%的小区
-
地铁公交
10.0
-
驾车出行
9.0
猜你喜欢
同小区其它房源
-
10553元/㎡
本月挂牌均价
-
1.39%
环比上月
买房加房产交流群,省钱不踩雷
3000+人正在热聊
加入群聊
- 免费咨询
- 专业服务
- 区域解读
- 户型分析
免责声明:房源信息由网站用户提供,其真实性、合法性由信息提供者负责,最终以政府部门登记备案为准。本网站不声明或保证内容之正确性和可靠性,购买该房屋时,请谨慎核查。入学情况仅凭历史经验总结,在此不承诺升学事宜。请您在签订合同之前,切勿支付任何形式的费用,以免上当受骗。

