中铁阅山湖阅湖墅 4室2厅0卫 其它 572万元
-
572万
总价
-
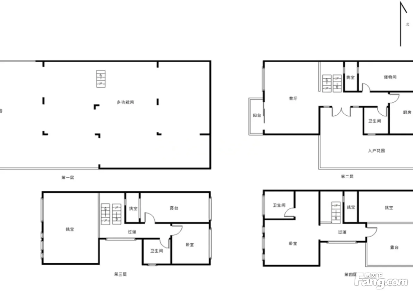
4室2厅
户型
-
177.18㎡
建筑面积
买房加房产交流群,省钱不踩雷
3000+人正在热聊
加入群聊
-
单价
32284元/平米
- 挂牌价格解析
-
楼层
4层
- 咨询楼层
-
套内
暂无数据
- 咨询套内使用面积
-
楼型
独栋
-
朝向
东
-
装修
简装修
-
年代
2019
-
发布
2024-11-22
-
地铁
距2号线观山西路约599米
-
深度测评
小区中铁阅山湖别墅(观山湖-阅山湖)
-
更多
楼户比、楼层高度、交易历史、抵押信息
房源描述(1)
-
核心卖点问经纪人
享受天造一半,人造一半的自然资源环境,生态优美 中铁阅山湖项目是由中国中铁置业有限公司倾力打造的,项目总占地5000亩地,其中阅山湖湿地公园湖面占地386亩,项目中山体公园占地2244亩,项目整体环境优美 中铁阅山湖享受自然山水环境,40万方阅湖湿地公园,5公里临湖跑道,更适合改善养老,生态环境优美 项目背面是林城西路,东面是云谭北路,南面是观山西路,西面是观山西路。 小区西北角是地铁一号线老湾塘站,东北角是阅山湖公园站。 小区主要出入口都有公交车站,通达全城。
-
业主心态问经纪人
房东置换,诚心出售,价格可以再谈,欢迎看房,随时恭候。
-
小区配套问经纪人
小区的东南面是万达广场,和万达一路之隔的是奥体、金阳医院、市政府、观山湖公园就在小区旁边
-
服务介绍问经纪人
本人从事房地产多年,公司有大量好房源,欢迎进入我的店铺查看,欢迎随时电话咨询,相信我的专业,为您置业安家保驾护航。
周边配套
地址:观山西路与云潭北路交汇处
交通综合评分
查看全部6.7
“较好”
超过贵阳1.8%的小区
-
地铁公交
10.0
-
驾车出行
9.0
猜你喜欢
同小区其它房源
-
10553元/㎡
本月挂牌均价
-
1.39%
环比上月
买房加房产交流群,省钱不踩雷
3000+人正在热聊
加入群聊
- 免费咨询
- 专业服务
- 区域解读
- 户型分析
免责声明:房源信息由网站用户提供,其真实性、合法性由信息提供者负责,最终以政府部门登记备案为准。本网站不声明或保证内容之正确性和可靠性,购买该房屋时,请谨慎核查。入学情况仅凭历史经验总结,在此不承诺升学事宜。请您在签订合同之前,切勿支付任何形式的费用,以免上当受骗。


