塔头 08年商品房 电梯高层 采光视野好
-
219万
总价
-
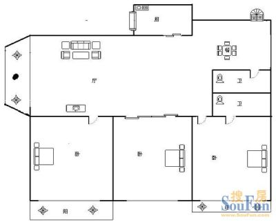
3室2厅
户型
-
135㎡
建筑面积
买房加房产交流群,省钱不踩雷
3000+人正在热聊
加入群聊
-
单价
16223元/平米
- 挂牌价格解析
-
楼层
高楼层/18层
- 咨询楼层
-
套内
暂无数据
- 咨询套内使用面积
-
楼型
塔楼
-
朝向
南
-
装修
简装
-
供暖
暂无数据
-
发布
2025-11-29
-
地铁
距4号线东门站约227米
-
咨询总首付
首付约76.3万
首付税费及佣金情况 -
深度测评
小区鸿达大厦(晋安-塔头)
-
更多
楼户比、楼层高度、交易历史、抵押信息
周边配套
地址:岳峰镇塔头路36号
交通综合评分
查看全部8.5
“较好”
超过福州69.8%的小区
-
地铁公交
10.0
-
驾车出行
10.0
-
城际交通
5.0
本月均价 17981元/m²
环比上月 下跌 2.56%
同比去年 下跌 2.82%
猜你喜欢
同小区其它房源
户型齐全,主打户型方正,明卫一居
鸿达大厦户型主要有26平-50平的户型方正,明卫的一居 、136平-138平的户型方正,客厅朝南的三居 、52平-52平的户型方正,明厨,客厅朝南,双卧朝南的二居 。
*获取完整户型报告,同时会有免费语音讲解服务
-
19168元/㎡
本月挂牌均价
-
0.18%
环比上月
买房加房产交流群,省钱不踩雷
3000+人正在热聊
加入群聊
免责声明:房源信息由网站用户提供,其真实性、合法性由信息提供者负责,最终以政府部门登记备案为准。本网站不声明或保证内容之正确性和可靠性,购买该房屋时,请谨慎核查。入学情况仅凭历史经验总结,在此不承诺升学事宜。请您在签订合同之前,切勿支付任何形式的费用,以免上当受骗。



