专车接送 低密洋房,得房率高,可看实地,高盖山公园
-
234万
总价
-
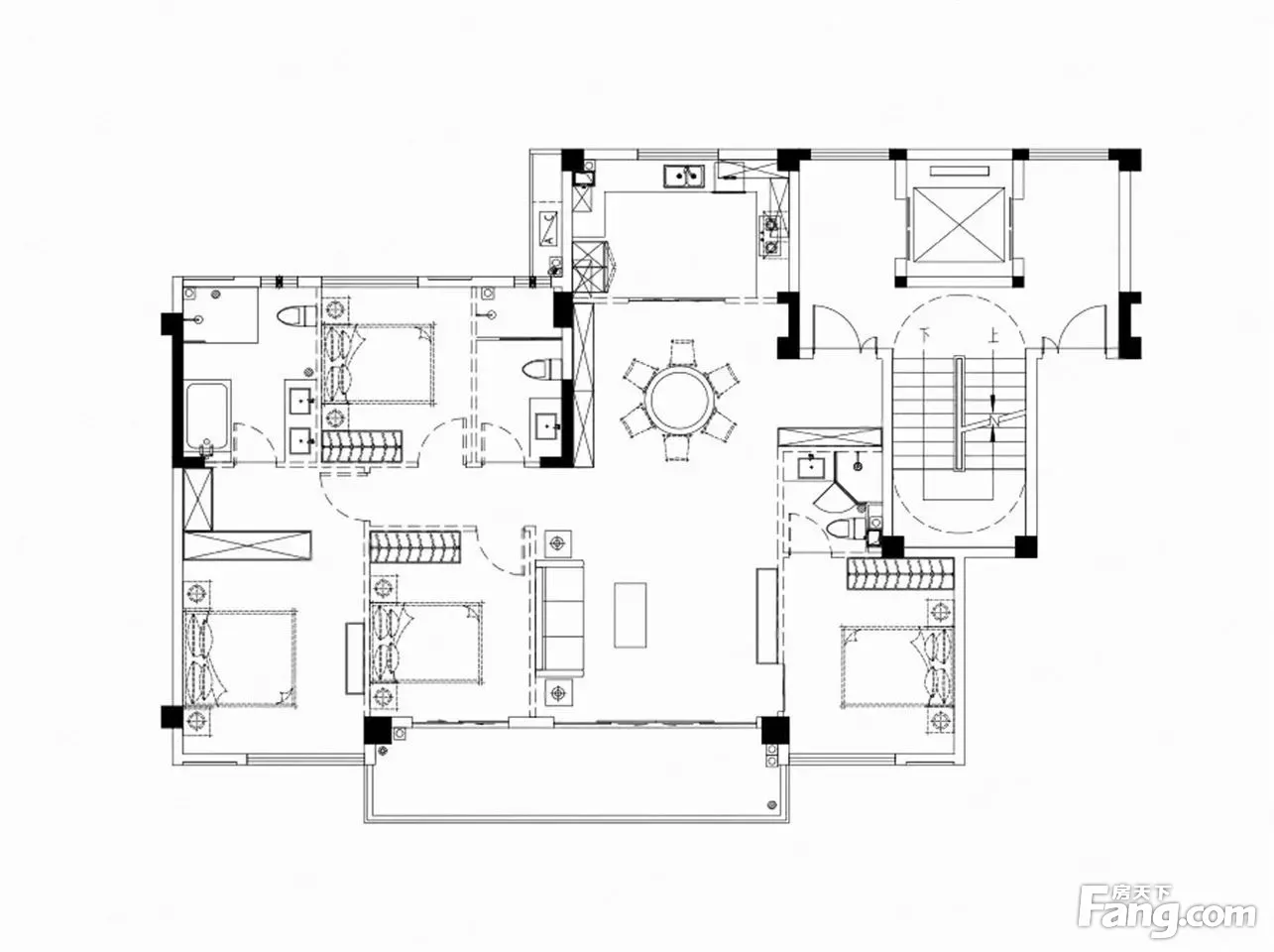
4室2厅2卫
户型
-
146㎡
建筑面积
买房加房产交流群,省钱不踩雷
3000+人正在热聊
-
单价
16027元/平米
- 挂牌价格解析
-
楼层
中层/20层
- 咨询楼层
-
套内
暂无数据
- 咨询套内使用面积
-
楼型
板楼
-
朝向
南
-
装修
毛坯
-
年代
2024
-
发布
2026-03-12
-
咨询总首付
首付约81.3万
首付税费及佣金情况 -
深度测评
小区阳光城檀映(仓山-仓山万达)
-
更多
楼户比、楼层高度、交易历史、抵押信息
房源描述(1)
-
核心卖点问经纪人
预约看房可享内部团购!!!无任何费用,看房需要提前预约,全程免费陪同看房,为您选购合适的房子,以及专车接送看房服务,期待您的来电。 【温馨提示】:凡是您自己去售楼部看房的,开发商均视为自然来访,不能享受额外的团购。
-
业主心态问经纪人
房东置换,诚心出售,价格可以再谈,欢迎看房,随时恭候。
-
小区配套问经纪人
位置:小区地理位置佳,绿化率高,居民素质高 配套:有健身器材,小型篮球场,可供小区居民使用 车位:停车位充足,建有地上停车场和地下车库 保安:小区内24保安巡逻
-
服务介绍问经纪人
本人从事房地产多年,公司有大量好房源,欢迎进入我的店铺查看,欢迎随时电话咨询,相信我的专业,为您置业安家保驾护航。
周边配套
本月均价 15227元/m²
环比上月 上涨 3.5%
同比去年 下跌 9.32%
猜你喜欢
同小区其它房源
-
18465元/㎡
本月挂牌均价
-
2.34%
环比上月
买房加房产交流群,省钱不踩雷
3000+人正在热聊
- 免费咨询
- 专业服务
- 区域解读
- 户型分析


