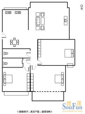
金山小丨榕心映月旁网红楼盘摘仙苑丨复式楼带大露台使用面积
-
335万
总价
-
4室2厅3卫
户型
-
217㎡
建筑面积
买房加房产交流群,省钱不踩雷
3000+人正在热聊
加入群聊
-
单价
15438元/平米
- 挂牌价格解析
-
楼层
高层/7层
- 咨询楼层
-
套内
216㎡
- 咨询套内使用面积
-
朝向
西南
-
装修
中装修
-
年代
2005
-
发布
2025-09-05
-
地铁
距2号线金山站约59米
-
咨询总首付
首付约115.9万
首付税费及佣金情况 -
深度测评
小区金山碧水二期摘仙苑(仓山-金祥路)
-
更多
楼户比、楼层高度、交易历史、抵押信息
房源描述(1)
周边配套
地址:金康路41号(金祥路与金康路交汇处)
交通综合评分
查看全部4.0
“一般”
超过福州59.2%的小区
-
地铁公交
10.0
本月均价 20326元/m²
环比上月 下跌 1.68%
同比去年 下跌 15.43%
猜你喜欢
同小区其它房源
户型齐全,主打户型方正,客厅朝南三居
金山碧水二期摘仙苑户型主要有119平-131平的户型方正,客厅朝南的三居 、120平-145平的户型方正,明卫,客厅朝南,双阳台,主卧朝南的四居 。
*获取完整户型报告,同时会有免费语音讲解服务
-
21622元/㎡
本月挂牌均价
-
2.41%
环比上月
买房加房产交流群,省钱不踩雷
3000+人正在热聊
加入群聊
- 免费咨询
- 专业服务
- 区域解读
- 户型分析
免责声明:房源信息由网站用户提供,其真实性、合法性由信息提供者负责,最终以政府部门登记备案为准。本网站不声明或保证内容之正确性和可靠性,购买该房屋时,请谨慎核查。入学情况仅凭历史经验总结,在此不承诺升学事宜。请您在签订合同之前,切勿支付任何形式的费用,以免上当受骗。

