金星四季花城金星四季花城,只要您来看有惊喜!
-
197万
总价
-
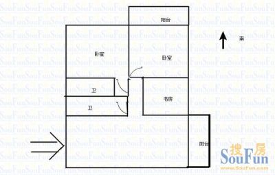
3室2厅1卫
户型
-
94.11㎡
建筑面积
买房加房产交流群,省钱不踩雷
3000+人正在热聊
-
单价
20933元/平米
- 挂牌价格解析
-
楼层
中层/8层
- 咨询楼层
-
套内
93.11㎡
- 咨询套内使用面积
-
楼型
板楼
-
朝向
南北
-
装修
简装修
-
年代
2002
-
发布
2025-06-23
-
地铁
距2号线祥坂站约430米
-
咨询总首付
首付约60.4万
首付税费及佣金情况 -
深度测评
小区金星四季花城(台江-西二环南路)
-
更多
楼户比、楼层高度、交易历史、抵押信息
房源描述(1)
-
核心卖点问经纪人
产权性质:房子70年大产权,产权清晰,有房本,随时过户。 朝向:南北,采光好,户型方正,没有浪费。 房子采光好,每个房间都有窗户,无遮挡视野好。 房屋年代:2002年新建小区,小区环境好,仿佛自然生长的欧洲格调生活小镇,稳重、优雅、古朴的砖大面积落地玻璃窗和精致的阳台栏杆,又赋予建筑现代感,小区生活配套设施即将完善,是大的社区,小区出行便利
-
业主心态问经纪人
房东置换,诚心出售,欢迎看房,随时恭候您的到来。
-
小区配套问经纪人
小区环境优雅,配套成熟,周边交通便利,居住舒适。
-
服务介绍问经纪人
本人从事房多年,公司有大量好房源,欢迎进入我的店铺查看,欢迎随时电话咨询,相信我的,为您置业安家保驾护航。
-
税费分析房贷计算
产权干净,税费清晰,欢迎咨询该房屋详情,静候您的!
周边配套
交通综合评分
查看全部超过福州58.1%的小区
-
地铁公交
10.0
本月均价 20620元/m²
环比上月 上涨 0.96%
同比去年 下跌 6.36%
猜你喜欢
同小区其它房源
户型齐全,主打户型方正,明厨,双阳台,主卧朝南三居
金星四季花城户型主要有90平-113平的户型方正,明厨,双阳台,主卧朝南的三居 、108平-176平的明厨,明卫,客厅朝南的四居 。
*获取完整户型报告,同时会有免费语音讲解服务
-
18711元/㎡
本月挂牌均价
-
0.06%
环比上月
买房加房产交流群,省钱不踩雷
3000+人正在热聊
- 免费咨询
- 专业服务
- 区域解读
- 户型分析

