配致齐全,环境好,门口有公交站到
-
165万
总价
-
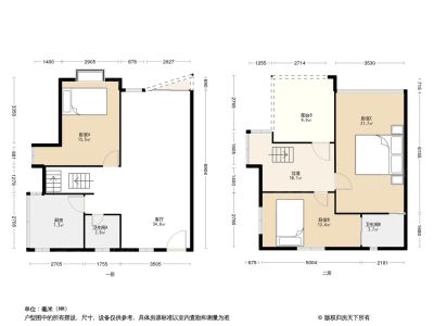
4室2厅
户型
-
131.25㎡
建筑面积
买房加房产交流群,省钱不踩雷
3000+人正在热聊
加入群聊
-
单价
12572元/平米
- 挂牌价格解析
-
楼层
高楼层/6层
- 咨询楼层
-
套内
暂无数据
- 咨询套内使用面积
-
朝向
南
-
装修
精装
-
供暖
暂无数据
-
发布
2023-05-25
-
地铁
暂无数据
-
深度测评
小区名雅花园(南海-黄岐)
-
更多
楼户比、楼层高度、交易历史、抵押信息
周边配套
地址:北村大道环洲三路
交通综合评分
查看全部2.0
“一般”
超过佛山42.2%的小区
-
地铁公交
5.0
本月均价 11977元/m²
环比上月 下跌 0.49%
同比去年 下跌 5.49%
猜你喜欢
同小区其它房源
户型齐全,主打户型方正,明卫二居
名雅花园户型主要有49平-137平的户型方正,明卫的二居 、67平-155平的户型方正,明卫,双阳台,双卧朝南的三居 、32平-40平的户型方正,明厨,明卫的一居 。
*获取完整户型报告,同时会有免费语音讲解服务
-
12736元/㎡
本月挂牌均价
-
0.51%
环比上月
买房加房产交流群,省钱不踩雷
3000+人正在热聊
加入群聊
免责声明:房源信息由网站用户提供,其真实性、合法性由信息提供者负责,最终以政府部门登记备案为准。本网站不声明或保证内容之正确性和可靠性,购买该房屋时,请谨慎核查。入学情况仅凭历史经验总结,在此不承诺升学事宜。请您在签订合同之前,切勿支付任何形式的费用,以免上当受骗。



