伦教渔人码头 带租2500 可商可住 来电看房 精装三房 笋
-
30万
总价
-
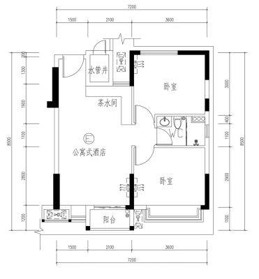
2室2厅2卫
户型
-
45㎡
建筑面积
买房加房产交流群,省钱不踩雷
3000+人正在热聊
-
单价
6667元/平米
- 挂牌价格解析
-
楼层
中层/25层
- 咨询楼层
-
套内
暂无数据
- 咨询套内使用面积
-
楼型
板楼
-
朝向
南
-
装修
简装修
-
年代
2018
-
发布
2025-12-18
-
深度测评
小区银钻广场(顺德-伦教)
-
更多
楼户比、楼层高度、交易历史、抵押信息
房源描述(1)
-
核心卖点问经纪人
1生活黑配套完善,饮食休闲购物,交通便利 2朝向好,采光,通风,产权清断,绝无虑假 3.饮食、各大银行、交通设施到中都在,生活自在, 4小区环墙优美,交通便利,周边大型购物超市。餐饮糖乐多,风气浓厚。 5.占地面积大,社区拥有别具特色的硅谷风采园林,多元化生活的双会所配套,国际水准的智能化配置,涉外品质的安全防范系统。 6地下车库及充足车位。集商务和娱乐休闲力体占尽新经济核心区的天时地利综合,开启资讯时代崭新的生活 7.拥有的绿化率,堪称天然氧吧,有客户称在此园能多活几十年。有专门到达公交车站,旁边有,周边正规划建配套设 8.环境舒适的小区
-
业主心态问经纪人
《业主情况》产权1人,本地人,签约随时 《房源情况》:无抵押,无贷款, 《无房源税费》满二 《业主关系》业主老窖户,对我信任。价格可以把控。 (更多信息/税费情况请点击查看电话)
-
小区配套问经纪人
1、小区环境优雅绿化.配套成熟。 2、环境优美适宜、人文素质高物业管理完善。 3、小区的容积率小,属于低密度社区,适宜。<br/> 4、绿化,环境清净优雅,空气清新。 <br/> 5、房屋配套设施齐 全,地理位置优越,生活舒适便利。 6、小区物业管理完善,人文素质高,保安全天看守巡逻,安全可靠、 是您居 家的守选! 7、周边配套齐全,出门走几步就是公交车站、街、肉菜市场。 8、楼下就有休闲草地广场,早晚带老人小孩散步运动都不错。
-
服务介绍问经纪人
做销售久了,在和客户的细读中,慢慢明白了,每个客户都不容易 .而我们能做 的就是用我们的真诚耐心,专业,帮助到每位信任我们的客户 !好的相处就是:你懂我的不易,我懂你的艰辛!我的使命让天下人拥有幸福
-
税费分析房贷计算
一,买房人应缴纳的费用: 1.契税:购房评估额90平内1%、90平 -144平1.5%,超过144平或非3% .买方纳税2.印花税:房款的3.交易费: 3元平方米4.测会费: 1.36元/平方米5. 权属登记费及取证费:一般情况是在200元内。 二,卖房人应缴纳税费: 1. 印花税:房款的2. 交易费:3元/平方米3. 营业税:全额的5.56%(房产证未满2年的 普通房间2年减免)4. 个人所得税:房款的1% (.普通房满五年减免)
周边配套
交通综合评分
查看全部超过佛山9.6%的小区
-
地铁公交
5.0
-
驾车出行
9.0
本月均价 8830元/m²
环比上月 持平
同比去年 上涨 12.12%
猜你喜欢
同小区其它房源
户型齐全,主打户型方正,客厅朝南,主卧朝南一居
银钻广场户型主要有32平-44平的户型方正,客厅朝南,主卧朝南的一居 、36平-67平的户型方正,客厅朝南,双卧朝南,主卧朝南的二居 、53平-53平的户型方正,客厅朝南的三居 。
*获取完整户型报告,同时会有免费语音讲解服务
-
8620元/㎡
本月挂牌均价
-
0.21%
环比上月
买房加房产交流群,省钱不踩雷
3000+人正在热聊
- 免费咨询
- 专业服务
- 区域解读
- 户型分析


