三水 三水时代云图 3室1厅 84.20㎡ 32万
-
32万元
总价
-
3室1厅1卫
户型
-
84.2㎡
建筑面积
买房加房产交流群,省钱不踩雷
3000+人正在热聊
加入群聊
-
单价
3800元/平米
- 挂牌价格解析
-
楼层
中层/16层
- 咨询楼层
-
套内
暂无数据
- 咨询套内使用面积
-
朝向
南
-
年代
2023
-
发布
2025-06-29
-
地铁
暂无数据
-
深度测评
小区三水时代云图(三水-南山)
-
更多
楼户比、楼层高度、交易历史、抵押信息
业主自评
-
余建国
加入房天下3386天
接电时间:09:00-22:00
周边配套
地址:南山镇民乐一路3号
交通综合评分
查看全部2.0
“一般”
超过佛山30.8%的小区
-
地铁公交
5.0
本月均价 6179元/m²
环比上月 下跌 3%
同比去年 下跌 1.25%
猜你喜欢
同小区其它房源
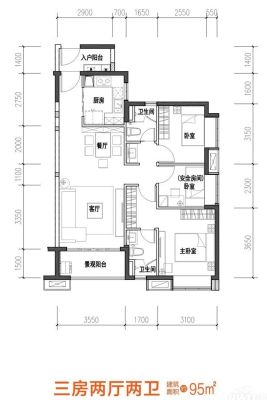
户型齐全,主打户型方正,动静分离三居
时代云图(三水)二期户型主要有85平-97平的户型方正,动静分离的三居 、117平-117平的南北通透,户型方正的四居 。
*获取完整户型报告,同时会有免费语音讲解服务
-
3981元/㎡
本月挂牌均价
-
1.58%
环比上月
买房加房产交流群,省钱不踩雷
3000+人正在热聊
加入群聊
联系业主
免责声明:房源信息由网站用户提供,其真实性、合法性由信息提供者负责,最终以政府部门登记备案为准。本网站不声明或保证内容之正确性和可靠性,购买该房屋时,请谨慎核查。入学情况仅凭历史经验总结,在此不承诺升学事宜。请您在签订合同之前,切勿支付任何形式的费用,以免上当受骗。

