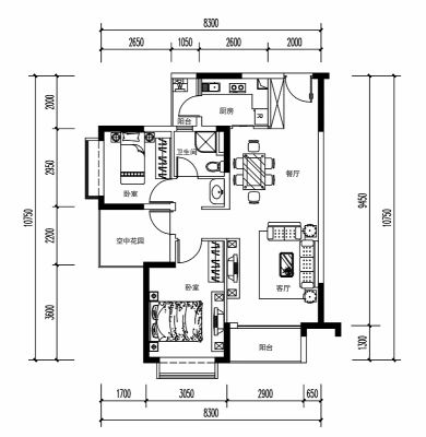
兰乔公馆 三房格局通透 中楼层 视野开阔 采光充足
-
78万
总价
-
3室2厅
户型
-
88.28㎡
建筑面积
-
单价
8836元/平米
- 挂牌价格解析
-
楼层
高楼层/18层
- 咨询楼层
-
套内
暂无数据
- 咨询套内使用面积
-
楼型
板塔结合
-
朝向
南
-
装修
其他
-
供暖
暂无数据
-
发布
2025-08-30
-
地铁
暂无数据
-
咨询总首付
首付约33.7万
首付税费及佣金情况 -
深度测评
小区东方银座兰乔公馆(常平-常平火车站)
-
更多
楼户比、楼层高度、交易历史、抵押信息
周边配套
地址:东江大道与常马路交汇处(常平中学旁)
交通综合评分
查看全部9.7
“非常好”
超过东莞86.9%的小区
-
地铁公交
10.0
-
驾车出行
10.0
-
城际交通
9.0
本月均价 14278元/m²
环比上月 上涨 0.3%
同比去年 上涨 44.96%
猜你喜欢
同小区其它房源
-
10939元/㎡
本月挂牌均价
-
0.27%
环比上月
免责声明:房源信息由网站用户提供,其真实性、合法性由信息提供者负责,最终以政府部门登记备案为准。本网站不声明或保证内容之正确性和可靠性,购买该房屋时,请谨慎核查。入学情况仅凭历史经验总结,在此不承诺升学事宜。请您在签订合同之前,切勿支付任何形式的费用,以免上当受骗。



