运河城98平米3房 业主诚意出售200万
-
177万
总价
-
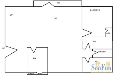
3室2厅
户型
-
98.3㎡
建筑面积
-
单价
18007元/平米
- 挂牌价格解析
-
楼层
中楼层/25层
- 咨询楼层
-
套内
暂无数据
- 咨询套内使用面积
-
楼型
板塔结合
-
朝向
东南
-
装修
精装
-
供暖
暂无数据
-
发布
2022-07-21
-
咨询总首付
首付约68.4万
首付税费及佣金情况 -
深度测评
小区运河城(莞城-运河东)
-
更多
楼户比、楼层高度、交易历史、抵押信息
交通综合评分
查看全部4.0
“一般”
超过东莞9.0%的小区
-
地铁公交
10.0
本月均价 10596元/m²
环比上月 下跌 3.27%
同比去年 下跌 34.42%
猜你喜欢
同小区其它房源
-
10240元/㎡
本月挂牌均价
-
1.43%
环比上月
免责声明:房源信息由网站用户提供,其真实性、合法性由信息提供者负责,最终以政府部门登记备案为准。本网站不声明或保证内容之正确性和可靠性,购买该房屋时,请谨慎核查。入学情况仅凭历史经验总结,在此不承诺升学事宜。请您在签订合同之前,切勿支付任何形式的费用,以免上当受骗。



