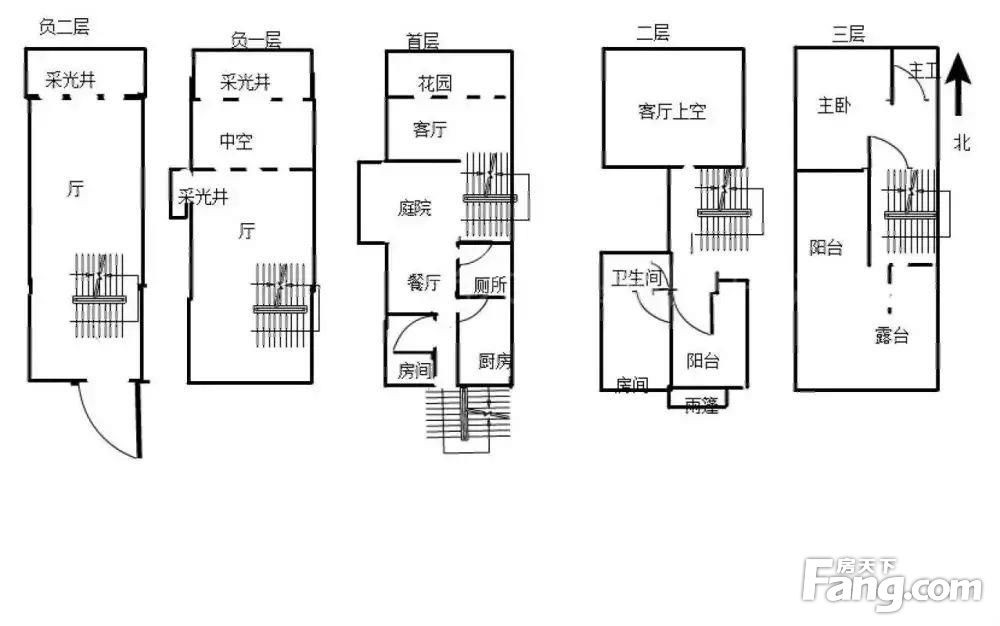
天骄御峰花园南北通透 实用七 平平 毛坯改动比较方便
-
1500万
总价
-
5室2厅4卫
户型
-
250.79㎡
建筑面积
-
单价
59811元/平米
- 挂牌价格解析
-
楼层
底层/3层
- 咨询楼层
-
套内
暂无数据
- 咨询套内使用面积
-
楼型
板楼
-
朝向
南北
-
装修
毛坯
-
年代
2015
-
发布
2026-04-06
-
地铁
距1号线立新站约767米
-
咨询总首付
首付约654万
首付税费及佣金情况 -
深度测评
小区天骄御峰花园(东城-火炼树)
-
更多
楼户比、楼层高度、交易历史、抵押信息
房源描述(1)
-
核心卖点问经纪人
1、户型方正 南北通透 格局实用 户型设计独特 使用面积高 2、采光充足 明厨明厅 采光充足 视野无遮挡 阳光清风自由往来 3、房间景观俯视空中水景园林全景 超大阳台 多景飘窗 经典户型 4、物业安全保障,小区内实行人车分流,小区内绿化率高,环境宜人 5、客厅开间大 ,厨房格局设计合理 双阳台 客厅 宽敞 大方 卧室温馨舒适 搭配心怡 厨房宽敞实用,让美味来的更加轻松
-
业主心态问经纪人
当时业主买的是新房,因生意转到外地没时间打理,所以出售房子
-
小区配套问经纪人
小区地理位置佳,绿化环境优越整洁,居民素质高,物业管理完善,适宜居住
-
服务介绍问经纪人
本人从事房地产多年,公司有大量好房源,欢迎进入我的店铺查看,欢迎随时电话咨询,相信我的专业,为您置业安家保驾护航。
-
税费分析房贷计算
关于本房的税费信息情况,请电话联系我,我将详细的为您讲解!
周边配套
交通综合评分
查看全部超过东莞29.3%的小区
-
地铁公交
10.0
本月均价 41452元/m²
环比上月 下跌 0.89%
同比去年 下跌 17.52%
猜你喜欢
同小区其它房源
-
31430元/㎡
本月挂牌均价
-
0.18%
环比上月
- 免费咨询
- 专业服务
- 区域解读
- 户型分析

