一手新房 宏发万悦城
-
317万
总价
-
5室2厅2卫
户型
-
196㎡
建筑面积
-
单价
16173元/平米
- 挂牌价格解析
-
楼层
中层/30层
- 咨询楼层
-
套内
195㎡
- 咨询套内使用面积
-
楼型
板楼
-
朝向
南
-
装修
毛坯
-
年代
2024
-
发布
2026-02-02
-
咨询总首付
首付约138.7万
首付税费及佣金情况 -
深度测评
小区宏发万悦城(塘厦-花园街)
-
更多
楼户比、楼层高度、交易历史、抵押信息
房源描述(1)
-
核心卖点问经纪人
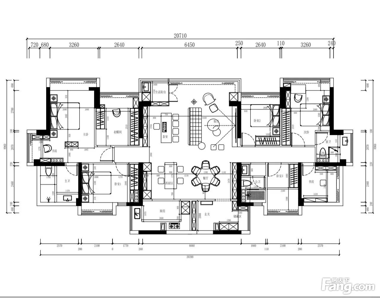
一、项目基础信息 占地面积 约 53 万 m2 建筑面积 约 200 万㎡ 容积率 5.0 开发商 宏发 装修状况 毛坯交付 绿化率 30.0% 物业公司 宏发 物业费 2.9 元/m2 梯户比 2T4、3T6 总户数 1092 户 停车位 1196 个 建面约 98m2 3+1房118 ㎡4+1房。
-
业主心态问经纪人
房东置换,诚心出售,可以再谈,欢迎看房,随时恭候。
-
小区配套问经纪人
社区配套 阳光草坪、游泳池、儿童活动场地、环跑道、宅间休憩空间、架空层功能空间
-
服务介绍问经纪人
我是东莞塘厦吴经理,在找房上班,负责新房销售。一手新房。
-
税费分析房贷计算
我就在楼下办公。详细情况当面跟您说。税费少。
-
户型解读问经纪人
房屋拥有相对宽松的尺寸,布局通透,动静分离,设计豪华
周边配套
地址:宏发万悦城营销中心
-
11813元/㎡
本月挂牌均价
-
1.19%
环比上月
- 免费咨询
- 专业服务
- 区域解读
- 户型分析
免责声明:房源信息由网站用户提供,其真实性、合法性由信息提供者负责,最终以政府部门登记备案为准。本网站不声明或保证内容之正确性和可靠性,购买该房屋时,请谨慎核查。入学情况仅凭历史经验总结,在此不承诺升学事宜。请您在签订合同之前,切勿支付任何形式的费用,以免上当受骗。

