中信御园独栋别墅,豪华装修,带家具家电出售,可拎包入住
-
3800万
总价
-
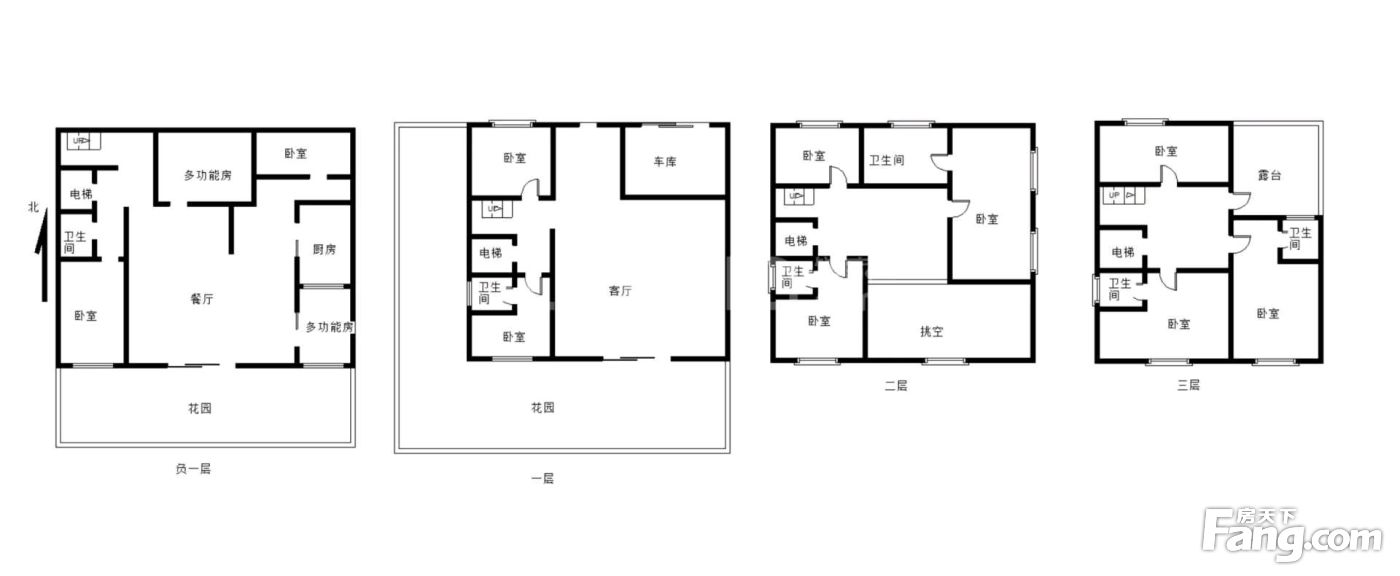
8室2厅5卫
户型
-
703㎡
建筑面积
-
单价
54054元/平米
- 挂牌价格解析
-
楼层
4层
- 咨询楼层
-
套内
暂无数据
- 咨询套内使用面积
-
楼型
独栋
-
朝向
北
-
装修
简装修
-
发布
2026-01-15
-
地铁
暂无数据
-
咨询总首付
首付约1654.4万
首付税费及佣金情况 -
深度测评
小区中信御园(东城-石井区)
-
更多
楼户比、楼层高度、交易历史、抵押信息
房源描述(1)
-
核心卖点问经纪人
中信御园独栋别墅,豪华装修,带家具家电出售,可拎包入住 ,超大花园。装修很漂亮
周边配套
地址:东莞市东城石井区黄旗山北麓迎宾路3号
交通综合评分
查看全部6.7
“较好”
超过东莞2.3%的小区
-
地铁公交
10.0
-
驾车出行
9.0
猜你喜欢
同小区其它房源
-
31856元/㎡
本月挂牌均价
-
1.12%
环比上月
- 免费咨询
- 专业服务
- 区域解读
- 户型分析
免责声明:房源信息由网站用户提供,其真实性、合法性由信息提供者负责,最终以政府部门登记备案为准。本网站不声明或保证内容之正确性和可靠性,购买该房屋时,请谨慎核查。入学情况仅凭历史经验总结,在此不承诺升学事宜。请您在签订合同之前,切勿支付任何形式的费用,以免上当受骗。


