招商雍景湾 3室2厅 92.63平
-
125万
总价
-
3室2厅1卫
户型
-
92.63㎡
建筑面积
-
单价
13495元/平米
- 挂牌价格解析
-
楼层
高层/33层
- 咨询楼层
-
套内
91.63㎡
- 咨询套内使用面积
-
楼型
板楼
-
朝向
南
-
装修
精装修
-
年代
2021
-
发布
2025-12-13
-
咨询总首付
首付约48.7万
首付税费及佣金情况 -
深度测评
小区招商雍景湾(横沥-横沥)
-
更多
楼户比、楼层高度、交易历史、抵押信息
房源描述(1)
-
核心卖点问经纪人
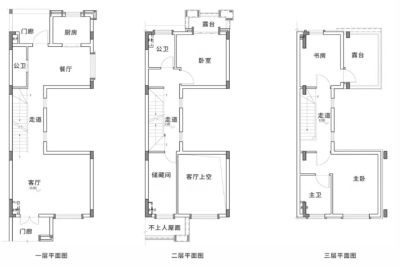
核心此房格局方正,三房两厅两卫,东南朝向,通风透气,全明格局 小区介绍小区物业招商物业,有24安保,人车分流,小孩老人居住都是很方便。小区还配有一所。配置全小区出入安保监控,出入大门人脸识别,花园绿化高,适宜家庭居住。挨着河边夜景公园,自带一个广场,生活便利 户型介绍户型朝南,两梯四户,3面朝南,适合家里有老人和小孩,不错的选择。 周边配套小区自带市一级公立,河边可以散步休闲,小区楼下有底商,日常生活配套方便,村尾农贸市场几百米。 交通出行小区楼下就是公交站台,可以前往横沥,常平等,1公里范围内就可以上东部快线,2公里上从莞深
-
业主心态问经纪人
房东置换,诚心出售,可以再谈,欢迎看房,随时恭候。
-
小区配套问经纪人
小区地理位置佳,绿化环境优越整洁,居民素质高,物业管理完善,适宜居住
-
服务介绍问经纪人
本人做房产多年,一直本着专业的房产知识,为您服务,我会在短的时间内帮您买好满意的房子,不让您错失任何好房子,更不让您每天为买房的事烦心,欢迎随时拨打我电话。
-
税费分析房贷计算
关于本房的税费信息情况,请电话联系我,我将详细的为您讲解!
-
户型解读问经纪人
房屋拥有相对宽松的尺寸,布局通透,动静分离,设计豪华
周边配套
交通综合评分
查看全部超过东莞6.5%的小区
-
地铁公交
10.0
-
驾车出行
10.0
本月均价 15800元/m²
环比上月 下跌 1.29%
同比去年 下跌 4.46%
猜你喜欢
同小区其它房源
户型齐全,主打南北通透,三开间朝南,主卧带卫,观景飘窗,U型厨房,明厨明卫,双阳台,大面宽阳台四居
招商雍景湾户型主要有115平-140平的南北通透,三开间朝南,主卧带卫,观景飘窗,U型厨房,明厨明卫,双阳台,大面宽阳台的四居 、90平-143平的户型方正,动静分离,主卧带卫,观景飘窗,L型厨房,明厨明卫,双阳台的三居 。
*获取完整户型报告,同时会有免费语音讲解服务
-
10506元/㎡
本月挂牌均价
-
0.07%
环比上月
- 免费咨询
- 专业服务
- 区域解读
- 户型分析


