天骄御峰别墅 南北通透 实用七 平 毛坯改动比较方便
-
1580万
总价
-
5室2厅4卫
户型
-
250.79㎡
建筑面积
-
单价
63001元/平米
- 挂牌价格解析
-
楼层
底层/3层
- 咨询楼层
-
套内
249.79㎡
- 咨询套内使用面积
-
楼型
板楼
-
朝向
南北
-
装修
简装修
-
年代
2015
-
发布
2025-11-11
-
地铁
距2号线鸿福路站约1026米
-
咨询总首付
首付约688.3万
首付税费及佣金情况 -
深度测评
小区天骄御峰花园(东城-火炼树)
-
更多
楼户比、楼层高度、交易历史、抵押信息
房源描述(1)
-
核心卖点问经纪人
1、户型方正 南北通透 格局实用 户型设计独特 使用面积高 2、采光充足 明厨明厅 采光充足 视野无遮挡 阳光清风自由往来 3、房间景观俯视空中水景园林全景 超大阳台 多景飘窗 经典户型 4、物业安全保障,小区内实行人车分流,小区内绿化率高,环境宜人 5、客厅开间大 ,厨房格局设计合理 双阳台 客厅 宽敞 大方 卧室温馨舒适 搭配心怡 厨房宽敞实用,让美味来的更加轻松
-
业主心态问经纪人
当时业主买的是新房,因生意转到外地没时间打理,所以出售房子
-
小区配套问经纪人
小区地理位置佳,绿化环境优越整洁,居民素质高,物业管理完善,适宜居住
-
服务介绍问经纪人
1.小区内设小区会所,有游泳池 健身房 篮球场等娱乐设施, 2.周边游玩配套有旗峰公园 虎英公园, 3.购物方面有汇一城 嘉荣超市 家乐福 国贸城等 业主要换大房子,保养非常好 ,看房配合.
-
税费分析房贷计算
关于本房的税费信息情况,请电话联系我,我将详细的为您讲解!
-
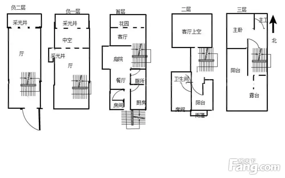
户型解读问经纪人
房屋拥有相对宽松的尺寸,布局通透,动静分离,设计豪华
周边配套
交通综合评分
查看全部超过东莞29.3%的小区
-
地铁公交
10.0
本月均价 43296元/m²
环比上月 下跌 0.67%
同比去年 下跌 17.1%
猜你喜欢
同小区其它房源
-
31742元/㎡
本月挂牌均价
-
1.67%
环比上月
- 免费咨询
- 专业服务
- 区域解读
- 户型分析

