三正半山豪苑 独栋别墅 带独立车库地下室 上下4层
-
1300万
总价
-
7室2厅3卫
户型
-
275㎡
建筑面积
-
单价
47273元/平米
- 挂牌价格解析
-
楼层
1层
- 咨询楼层
-
套内
274㎡
- 咨询套内使用面积
-
楼型
独栋
-
朝向
南
-
装修
简装修
-
年代
2012
-
发布
2025-11-01
-
地铁
暂无数据
-
咨询总首付
首付约566万
首付税费及佣金情况 -
深度测评
小区三正半山豪苑别墅(塘厦-新行政中心)
-
更多
楼户比、楼层高度、交易历史、抵押信息
房源描述(1)
-
核心卖点问经纪人
三正半山坐落于迎宾大道,迎宾高速入口处的新行政文化中心区,半绕大钟岭水库而建,涵盖五 园林度假酒店、山水湖泊、半山建筑三大规划主题,分为住宅和别墅,共5期开发, 早一期2004年交楼,占地51.2万平,容积率0.58,绿化76.5%。 三正半山总共分为11个区,椰林园、棕榈园和5期水岸豪庭的23,24,25,26栋为住宅。一期汇景、湖光、湖畔;二期半山、半岛;三期雅景、山水;四期豪门;五期水岸豪庭都是别墅,其中以独栋别墅为主。 别墅共有599栋(分为独栋、双拼、叠加),物业是三正物业。物业费:2.8元/平
-
业主心态问经纪人
业主诚意出售,无抵押,无经济纠纷,看房方便,价格可谈 本人对接业主,清晰了解业主卖房动态 为您的安家置业全程放心可靠服务!
-
小区配套问经纪人
小区地理位置佳,绿化环境优越整洁,居民素质高,物业管理完善,适宜居住
-
服务介绍问经纪人
本人从事房地产行业多年,深耕塘厦各个社区,有大量小区房源。 专业素质服务,真诚接待,客户至上。 所发房源全部真实有效,价格真实。 欢迎您进入我的店铺查看,欢迎随时致电咨询或者详聊。 相信我的专业,
-
税费分析房贷计算
关于本房的税费信息情况,请电话联系我,我将详细的为您讲解!
-
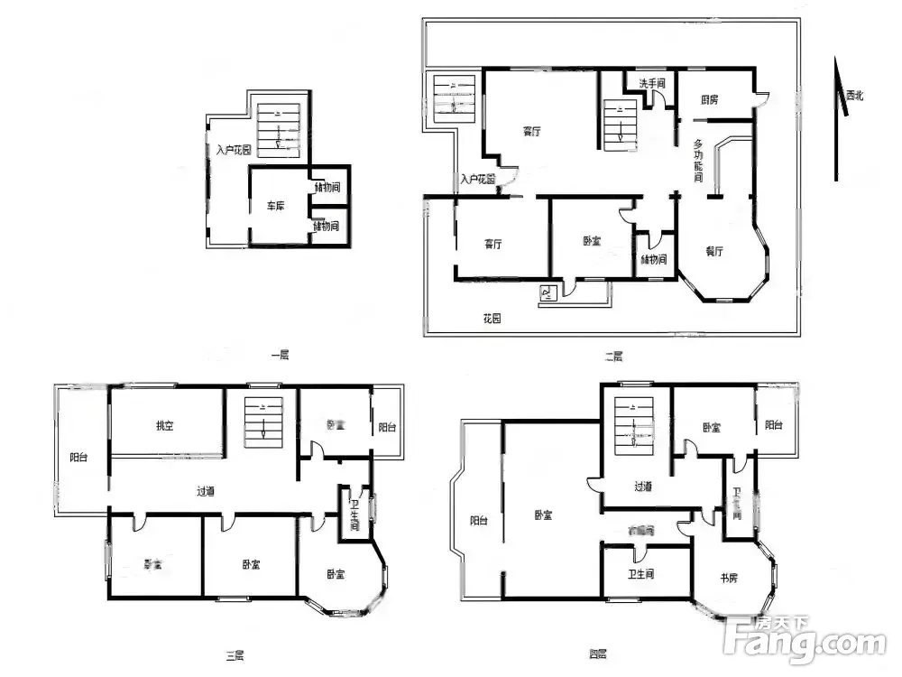
户型解读问经纪人
房屋拥有相对宽松的尺寸,布局通透,动静分离,设计豪华
周边配套
地址:东莞市塘厦镇新行文化中心区内迎宾大道旁
交通综合评分
查看全部7.0
“较好”
超过东莞38.1%的小区
-
地铁公交
10.0
-
驾车出行
10.0
猜你喜欢
同小区其它房源
-
21780元/㎡
本月挂牌均价
-
0.97%
环比上月
- 免费咨询
- 专业服务
- 区域解读
- 户型分析
免责声明:房源信息由网站用户提供,其真实性、合法性由信息提供者负责,最终以政府部门登记备案为准。本网站不声明或保证内容之正确性和可靠性,购买该房屋时,请谨慎核查。入学情况仅凭历史经验总结,在此不承诺升学事宜。请您在签订合同之前,切勿支付任何形式的费用,以免上当受骗。

