翡翠湾精装独栋别墅 全新装修未入住 实用面积2000平方 急
-
2400万
总价
-
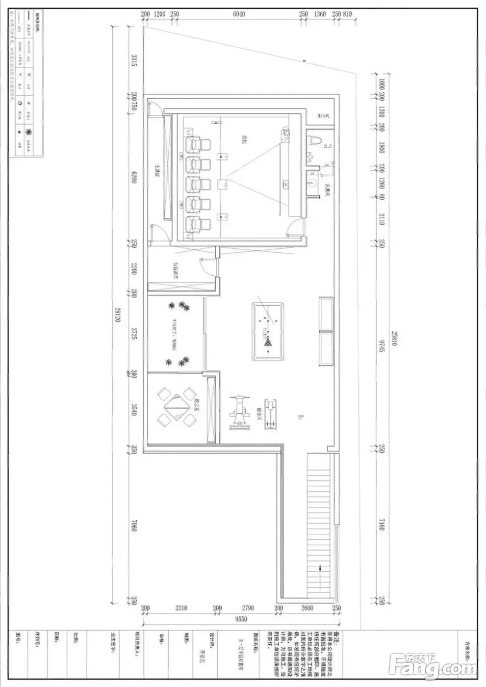
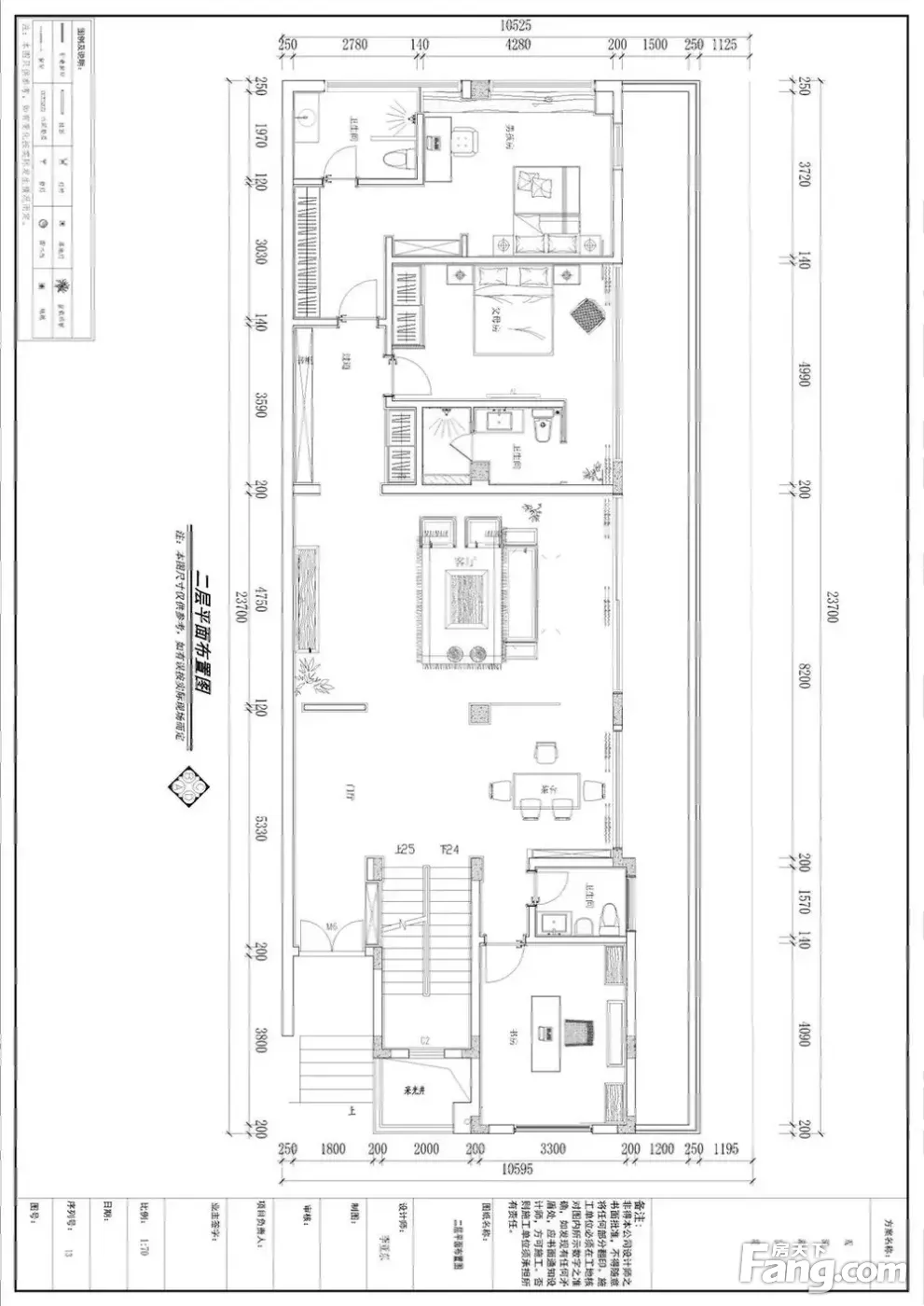
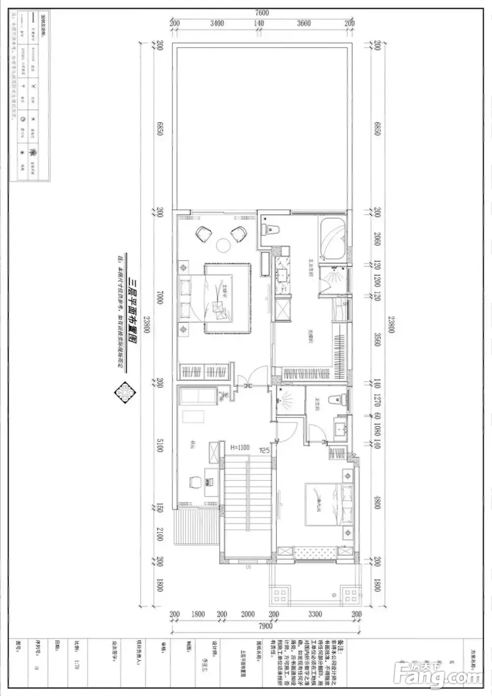
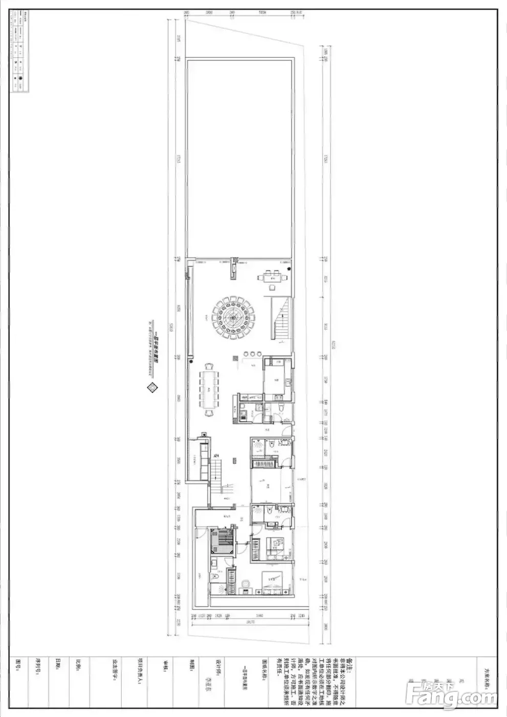
6室5厅5卫
户型
-
289㎡
建筑面积
-
单价
83045元/平米
- 挂牌价格解析
-
楼层
3层
- 咨询楼层
-
套内
288㎡
- 咨询套内使用面积
-
楼型
独栋
-
朝向
南
-
装修
简装修
-
年代
2012
-
发布
2025-05-24
-
咨询总首付
首付约1044.9万
首付税费及佣金情况 -
深度测评
小区观澜湖翡翠湾别墅(塘厦-新开发区)
-
更多
楼户比、楼层高度、交易历史、抵押信息
房源描述(1)
-
核心卖点问经纪人
【房屋简介】2012年建,大平层设计,空间利用高效。餐厅客厅分离,视野开阔,高层位置,朝向良好。电梯入户,舒适便捷。6室5厅5卫,南向,精装修,拎包入住。产权年限70年,产权类型为商品房住宅,产权清晰,购入年限满五 。价格2400万,性价比高。
-
业主心态问经纪人
《业主心态》业主因移民需求,诚意出售此房。随时可看,手续完备,价格有商量空间。房东积极配合,急售心态明显,期待与您洽谈!
-
小区配套问经纪人
小区地理位置佳,绿化环境优越整洁,居民素质高,物业管理完善,适宜居住
-
服务介绍问经纪人
【专业推荐】我是您的专属房产顾问,拥有丰富成交经验和带看经验,熟悉小区各种户型和周边配套。我将为您提供 的税费计算、首付设计,帮助您制定科学的购房计划。凭借良好的控房能力和与业主的良好关系,我能为您争
-
税费分析房贷计算
关于本房的税费信息情况,请电话联系我,我将详细的为您讲解!
-
户型解读问经纪人
房屋拥有相对宽松的尺寸,布局通透,动静分离,设计豪华
周边配套
地址:塘厦大坪林坪路观澜湖
交通综合评分
查看全部6.7
“较好”
超过东莞77.6%的小区
-
地铁公交
10.0
-
驾车出行
9.0
-
20490元/㎡
本月挂牌均价
-
0.77%
环比上月
- 免费咨询
- 专业服务
- 区域解读
- 户型分析
免责声明:房源信息由网站用户提供,其真实性、合法性由信息提供者负责,最终以政府部门登记备案为准。本网站不声明或保证内容之正确性和可靠性,购买该房屋时,请谨慎核查。入学情况仅凭历史经验总结,在此不承诺升学事宜。请您在签订合同之前,切勿支付任何形式的费用,以免上当受骗。


