森林湖大别墅 517平 少有这种大别墅放盘 真实在卖 可以看
-
3000万
总价
-
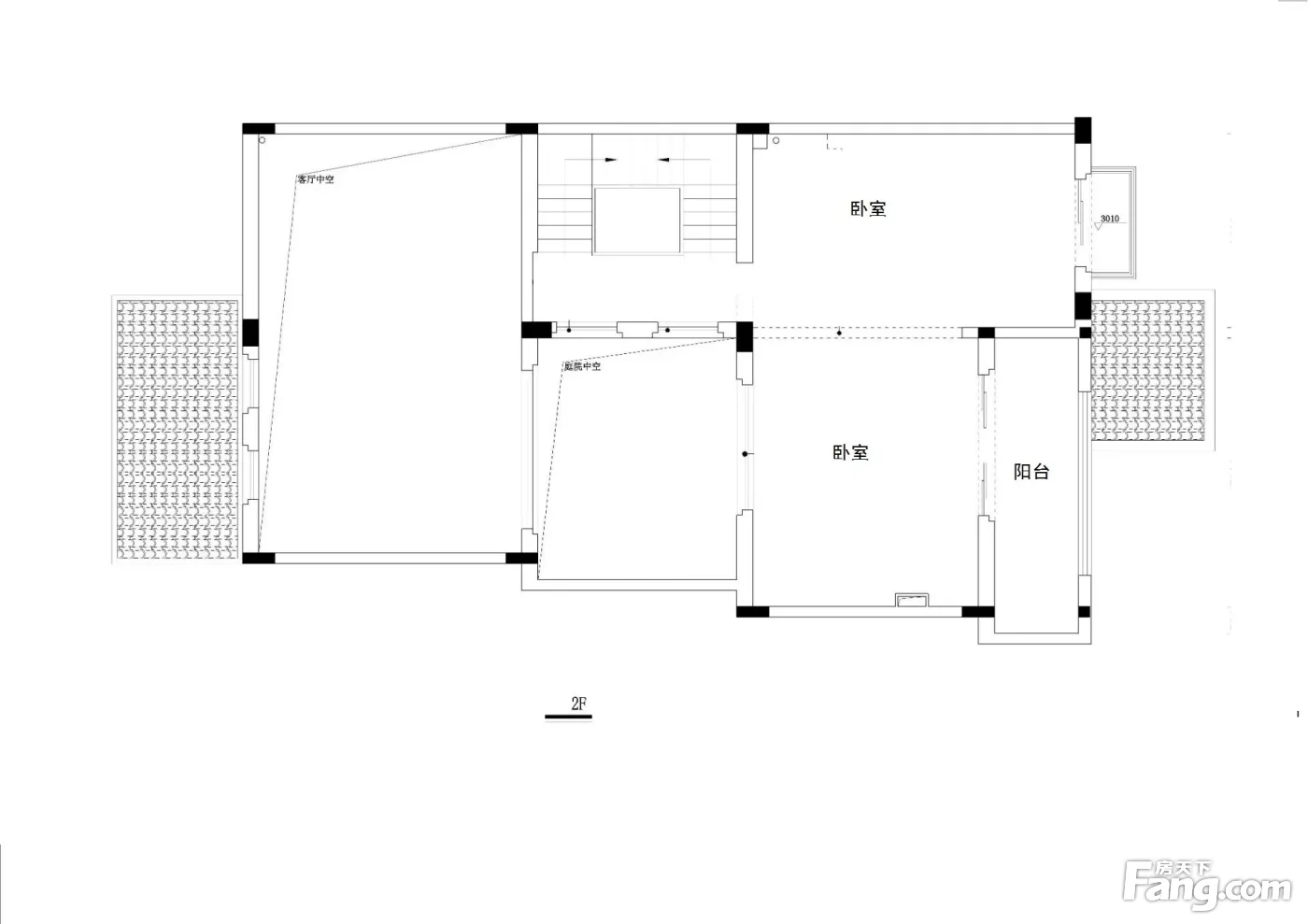
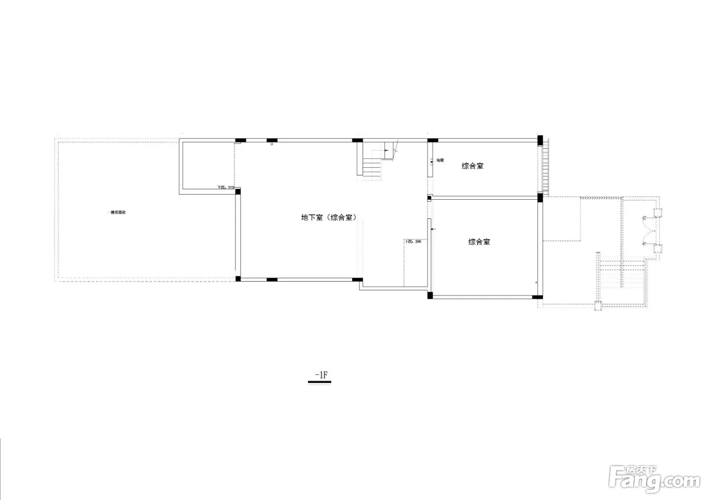
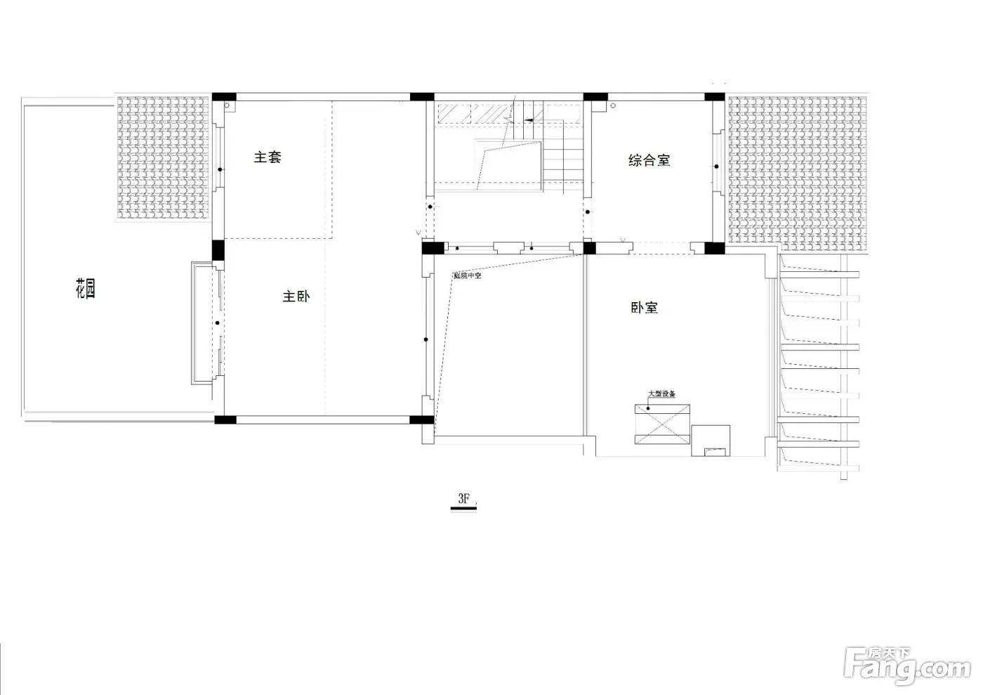
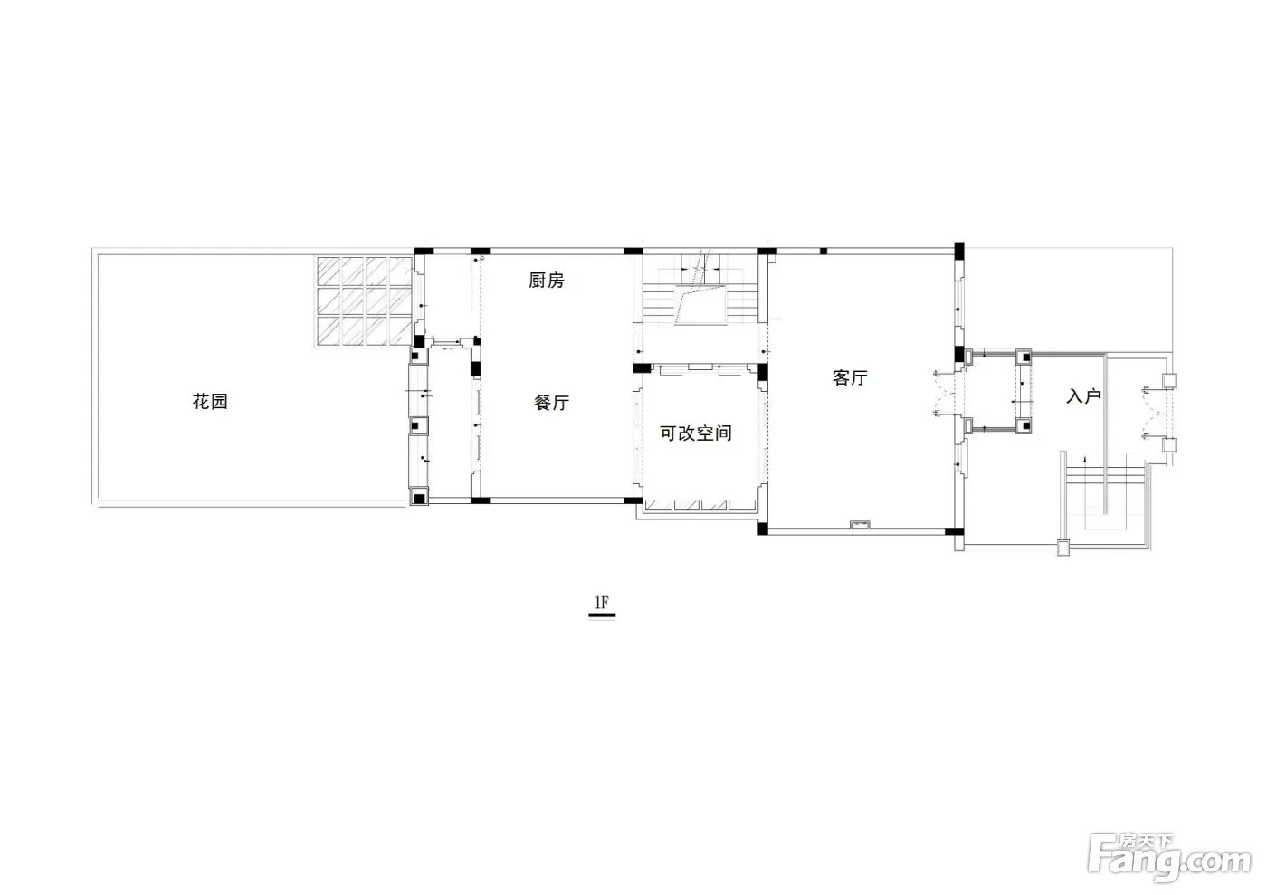
6室3厅4卫
户型
-
517㎡
建筑面积
-
单价
58027元/平米
- 挂牌价格解析
-
楼层
4层
- 咨询楼层
-
套内
暂无数据
- 咨询套内使用面积
-
楼型
独栋
-
朝向
南
-
装修
毛坯
-
发布
2025-12-17
-
地铁
距2号线蛤地站约902米
-
咨询总首付
首付约1307.1万
首付税费及佣金情况 -
深度测评
小区中信森林湖别墅(南城-水濂山)
-
更多
楼户比、楼层高度、交易历史、抵押信息
房源描述(1)
-
核心卖点问经纪人
森林湖大别墅 517平 少有这种大别墅放盘 真实在卖 可以看
周边配套
地址:东莞市南城区西平五环路与东莞大道交汇处
交通综合评分
查看全部7.0
“较好”
超过东莞37.5%的小区
-
地铁公交
10.0
-
驾车出行
10.0
-
35342元/㎡
本月挂牌均价
-
2.15%
环比上月
- 免费咨询
- 专业服务
- 区域解读
- 户型分析
免责声明:房源信息由网站用户提供,其真实性、合法性由信息提供者负责,最终以政府部门登记备案为准。本网站不声明或保证内容之正确性和可靠性,购买该房屋时,请谨慎核查。入学情况仅凭历史经验总结,在此不承诺升学事宜。请您在签订合同之前,切勿支付任何形式的费用,以免上当受骗。


