天宁 青竹苑 3室3厅2卫
-
140万元
总价
-
3室3厅2卫
户型
-
143.58㎡
建筑面积
买房加房产交流群,省钱不踩雷
3000+人正在热聊
加入群聊
-
单价
9751元/平米
- 挂牌价格解析
-
楼层
低层/18层
- 咨询楼层
-
套内
暂无数据
- 咨询套内使用面积
-
朝向
南
-
发布
2024-12-30
-
地铁
暂无数据
-
咨询总首付
首付约41.5万
首付税费及佣金情况 -
深度测评
小区青竹苑(天宁-青龙)
-
更多
楼户比、楼层高度、交易历史、抵押信息
业主自评
-
梵花軒
加入房天下5011天
接电时间:09:00-22:00
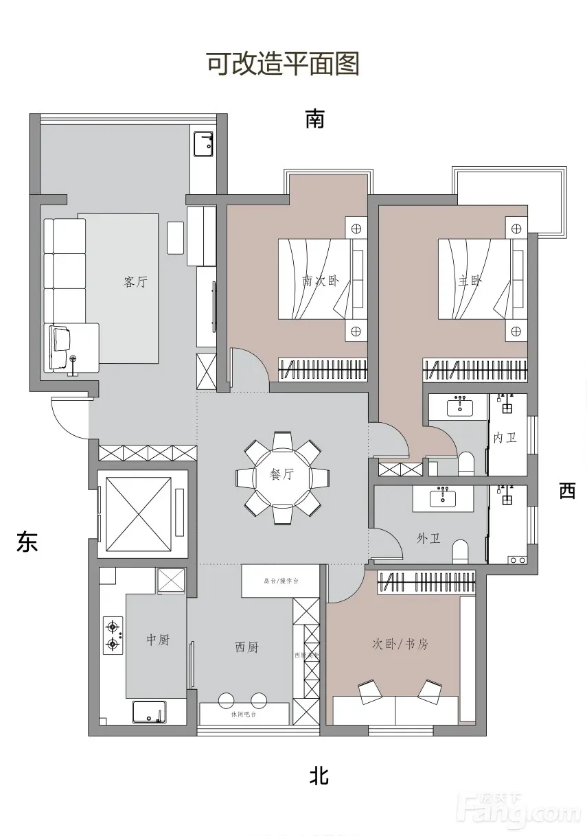
一梯一户,三室三厅两卫,三开间朝南,采光极好。每个卧室空间尺寸都较宽敞。两朝南房间可放1.8米大床,朝北房间可放1.5米大床。客餐厅等公共空间尺寸较大,可拓展为中西双厨,加独立的餐厅。整个户型平面舒适性强,适合用于改善。
一梯一户,三室三厅两卫,三开间朝南,采光极好。每个卧室空间尺寸都较宽敞。两朝南房间可放1.8米大床,朝北房间可放1.5米大床。客餐厅等公共空间尺寸较大,可拓展为中西双厨,加独立的餐厅。整个户型平面舒适性强,适合用于改善。
周边配套
地址:永宁雅苑对面
交通综合评分
查看全部8.2
“较好”
超过常州41.7%的小区
-
地铁公交
10.0
-
驾车出行
10.0
-
城际交通
4.0
本月均价 8946元/m²
环比上月 上涨 0.66%
同比去年 下跌 12.75%
猜你喜欢
同小区其它房源
-
13749元/㎡
本月挂牌均价
-
1.57%
环比上月
买房加房产交流群,省钱不踩雷
3000+人正在热聊
加入群聊
联系业主
免责声明:房源信息由网站用户提供,其真实性、合法性由信息提供者负责,最终以政府部门登记备案为准。本网站不声明或保证内容之正确性和可靠性,购买该房屋时,请谨慎核查。入学情况仅凭历史经验总结,在此不承诺升学事宜。请您在签订合同之前,切勿支付任何形式的费用,以免上当受骗。

