地华梅溪湖畔1室1厅东
-
37万
总价
-
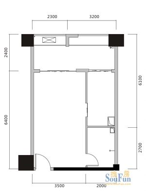
1室1厅
户型
-
42.31㎡
建筑面积
买房加房产交流群,省钱不踩雷
3000+人正在热聊
加入群聊
-
单价
8745元/平米
- 挂牌价格解析
-
楼层
中楼层/26层
- 咨询楼层
-
套内
暂无数据
- 咨询套内使用面积
-
楼型
塔楼
-
朝向
东
-
装修
其他
-
供暖
自供暖
-
发布
2026-03-05
-
地铁
距2号线梅溪湖东站约1021米
-
咨询总首付
首付约8.5万
首付税费及佣金情况 -
深度测评
小区地华梅溪湖畔(岳麓-梅溪湖)
-
更多
楼户比、楼层高度、交易历史、抵押信息
周边配套
地址:枫林三路238号(枫林三路与麓枫路交汇处西北角)
交通综合评分
查看全部6.7
“较好”
超过长沙90.9%的小区
-
地铁公交
10.0
-
驾车出行
9.0
本月均价 7976元/m²
环比上月 上涨 0.03%
同比去年 下跌 20.07%
猜你喜欢
同小区其它房源
户型齐全,主打明卫,明厨,双阳台,主卧朝南三居
地华梅溪湖畔户型主要有118平-121平的明卫,明厨,双阳台,主卧朝南的三居 、78平-86平的明卫,客厅朝南,主卧朝南的二居 、42平-50平的户型方正,主卧朝南的一居 。
*获取完整户型报告,同时会有免费语音讲解服务
-
14768元/㎡
本月挂牌均价
-
0.78%
环比上月
买房加房产交流群,省钱不踩雷
3000+人正在热聊
加入群聊
免责声明:房源信息由网站用户提供,其真实性、合法性由信息提供者负责,最终以政府部门登记备案为准。本网站不声明或保证内容之正确性和可靠性,购买该房屋时,请谨慎核查。入学情况仅凭历史经验总结,在此不承诺升学事宜。请您在签订合同之前,切勿支付任何形式的费用,以免上当受骗。



