边套高层可看江岳鞍阁公园,视野开阔,两套连着一起
-
25万
总价
-
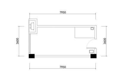
1室1厅
户型
-
39.66㎡
建筑面积
买房加房产交流群,省钱不踩雷
3000+人正在热聊
加入群聊
-
单价
6304元/平米
- 挂牌价格解析
-
楼层
高楼层/21层
- 咨询楼层
-
套内
暂无数据
- 咨询套内使用面积
-
楼型
板塔结合
-
朝向
北
-
装修
毛坯
-
供暖
暂无数据
-
发布
2025-09-07
-
地铁
暂无数据
-
咨询总首付
首付约5.9万
首付税费及佣金情况 -
深度测评
小区北辰时光里(岳麓-市府片区)
-
更多
楼户比、楼层高度、交易历史、抵押信息
周边配套
地址:长望路与岳华路交汇处
交通综合评分
查看全部4.0
“一般”
超过长沙0.0%的小区
-
地铁公交
10.0
本月均价 12116元/m²
环比上月 下跌 2.66%
同比去年 下跌 24.5%
猜你喜欢
同小区其它房源
户型齐全,主打全明格局,户型方正一居
北辰时光里户型主要有42平-62平的全明格局,户型方正的一居 、127平-127平的全明格局,户型方正的三居 、141平-141平的全明格局,户型方正的四居 。
*获取完整户型报告,同时会有免费语音讲解服务
买房加房产交流群,省钱不踩雷
3000+人正在热聊
加入群聊
免责声明:房源信息由网站用户提供,其真实性、合法性由信息提供者负责,最终以政府部门登记备案为准。本网站不声明或保证内容之正确性和可靠性,购买该房屋时,请谨慎核查。入学情况仅凭历史经验总结,在此不承诺升学事宜。请您在签订合同之前,切勿支付任何形式的费用,以免上当受骗。



