芙蓉区正地铁口 绿城出品 可看浏阳河 品质高 环境好
-
156万
总价
-
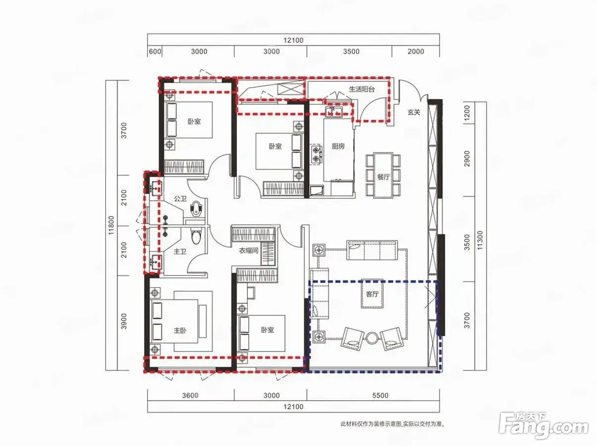
4室2厅2卫
户型
-
143㎡
建筑面积
买房加房产交流群,省钱不踩雷
3000+人正在热聊
-
单价
10909元/平米
- 挂牌价格解析
-
楼层
中层/34层
- 咨询楼层
-
套内
暂无数据
- 咨询套内使用面积
-
楼型
板楼
-
朝向
南
-
装修
毛坯
-
年代
2026
-
发布
2026-01-07
-
地铁
距6号线隆平水稻博物馆约247米
-
咨询总首付
首付约29.5万
首付税费及佣金情况 -
深度测评
小区绿城柳畔听澜(芙蓉-隆平科技园)
-
更多
楼户比、楼层高度、交易历史、抵押信息
房源描述(1)
-
核心卖点问经纪人
1:此房源为新房 2:本人不收取任何 ,专业一对一看房 3:作为新房,除交契税外不需要交个税综合税等税 4:本人声明,此房源为真实有效房源,价格由于楼层不同,可能有所浮动,具体详细情况请致电详谈 5:凡自己去售楼看房的,开发商均视为自然来访,不能享受到额外的 6:参加我们团购您可以在开发商享受额外的 ,同样的房子通过我们带看能更划算购买,因为我们是开发商团队,没有广告成本,让利给购房者,全城配您看房,省时省心。
-
业主心态问经纪人
房东置换,诚心出售,价格可以再谈,欢迎看房,随时恭候。
-
小区配套问经纪人
位置:小区地理位置佳,绿化率高,居民素质高 配套:有健身器材,小型篮球场,可供小区居民使用 车位:停车位充足,建有地上停车场和地下车库 保安:小区内24保安巡逻
-
服务介绍问经纪人
本人从事房地产多年,公司有大量好房源,欢迎进入我的店铺查看,欢迎随时电话咨询,相信我的专业,为您置业安家保驾护航。
周边配套
本月均价 10573元/m²
环比上月 持平
同比去年 持平 持平
户型齐全,主打三开间朝南,双卧朝南三居
绿城柳畔听澜户型主要有112平-117平的三开间朝南,双卧朝南的三居 、133平-149平的双卧朝南,三开间朝南,主卧带卫的四居 。
*获取完整户型报告,同时会有免费语音讲解服务
-
9007元/㎡
本月挂牌均价
-
1.07%
环比上月
买房加房产交流群,省钱不踩雷
3000+人正在热聊
- 免费咨询
- 专业服务
- 区域解读
- 户型分析


