梅溪湖一期新规住宅 低密小高层板式户型 私梯入户 配套完善
-
170.88万
总价
-
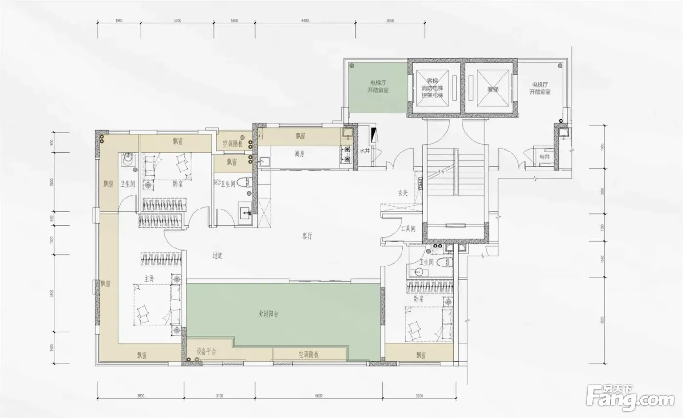
4室2厅3卫
户型
-
139㎡
建筑面积
买房加房产交流群,省钱不踩雷
3000+人正在热聊
加入群聊
-
单价
12294元/平米
- 挂牌价格解析
-
楼层
低层/18层
- 咨询楼层
-
套内
暂无数据
- 咨询套内使用面积
-
楼型
板楼
-
朝向
南
-
装修
简装修
-
年代
2026
-
发布
2025-12-05
-
咨询总首付
首付约31.9万
首付税费及佣金情况 -
深度测评
小区招商揽阅(岳麓-麓谷片区)
-
更多
楼户比、楼层高度、交易历史、抵押信息
房源描述(1)
-
核心卖点问经纪人
我们为您提供以下服务:本人2012年来到长沙从事房地产行业,深耕房地产10年,专业经纪人,来自湖南邵阳。 性格;热情开放,活泼型 1、全程陪同选房,并提供专业的购置分析 2、按揭贷款、公积金,组合贷.接力贷 3、管控交易资金安全、合同零纠纷的服务保障 4、全程一对一专属顾问、售后一对一专属管家贴心服务 5、优化税费缴纳,高效率、为您节省每 钱
-
业主心态问经纪人
房东置换,诚心出售,价格可以再谈,欢迎看房,随时恭候。
-
小区配套问经纪人
位置:小区地理位置佳,绿化率高,居民素质高 配套:有健身器材,小型篮球场,可供小区居民使用 车位:停车位充足,建有地上停车场和地下车库 保安:小区内24保安巡逻
-
服务介绍问经纪人
本人从事房地产多年,公司有大量好房源,欢迎进入我的店铺查看,欢迎随时电话咨询,相信我的专业,为您置业安家保驾护航。
周边配套
地址:岳麓区麓谷大道与枫林三路交会处东北角(L03-F01地块)
户型齐全,主打双卧朝南,三开间朝南二居
招商揽阅户型主要有117平-117平的双卧朝南,三开间朝南的二居 、117平-128平的双卧朝南,三开间朝南的三居 、128平-139平的户型方正,主卧带卫的四居 。
*获取完整户型报告,同时会有免费语音讲解服务
买房加房产交流群,省钱不踩雷
3000+人正在热聊
加入群聊
- 免费咨询
- 专业服务
- 区域解读
- 户型分析
免责声明:房源信息由网站用户提供,其真实性、合法性由信息提供者负责,最终以政府部门登记备案为准。本网站不声明或保证内容之正确性和可靠性,购买该房屋时,请谨慎核查。入学情况仅凭历史经验总结,在此不承诺升学事宜。请您在签订合同之前,切勿支付任何形式的费用,以免上当受骗。


