芙蓉区 地铁口 绿城品质 园林绿化高 毛坯准现房
-
129万
总价
-
3室2厅2卫
户型
-
112㎡
建筑面积
买房加房产交流群,省钱不踩雷
3000+人正在热聊
-
单价
11518元/平米
- 挂牌价格解析
-
楼层
底层/1层
- 咨询楼层
-
套内
暂无数据
- 咨询套内使用面积
-
楼型
板楼
-
朝向
南
-
装修
毛坯
-
年代
2026
-
发布
2025-11-13
-
地铁
距6号线隆平水稻博物馆约247米
-
咨询总首付
首付约24.5万
首付税费及佣金情况 -
深度测评
小区绿城柳畔听澜(芙蓉-隆平科技园)
-
更多
楼户比、楼层高度、交易历史、抵押信息
房源描述(1)
-
核心卖点问经纪人
本人在长沙从事房地产10多年,熟悉多个楼盘 开发商!! 1.本人郑重承诺新房一律不收取任何费用!!并且随时可以接送看房! 2.本人是58平台,平台与开发商合作,会有额外的团购优惠 比你自己去售楼部便宜 3.我们在长沙合作楼盘有几百个楼盘项目,可以给你匹配 合适,性价比 的项目!!
-
业主心态问经纪人
房东置换,诚心出售,价格可以再谈,欢迎看房,随时恭候。
-
小区配套问经纪人
位置:小区地理位置佳,绿化率高,居民素质高 配套:有健身器材,小型篮球场,可供小区居民使用 车位:停车位充足,建有地上停车场和地下车库 保安:小区内24保安巡逻
-
服务介绍问经纪人
本人从事房地产多年,公司有大量好房源,欢迎进入我的店铺查看,欢迎随时电话咨询,相信我的专业,为您置业安家保驾护航。
周边配套
本月均价 10836元/m²
环比上月 上涨 0.87%
同比去年 上涨 0.28%
猜你喜欢
同小区其它房源
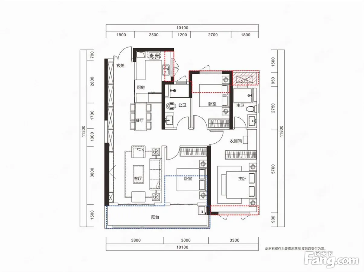
户型齐全,主打三开间朝南,双卧朝南三居
绿城柳畔听澜户型主要有112平-117平的三开间朝南,双卧朝南的三居 、133平-149平的双卧朝南,三开间朝南,主卧带卫的四居 。
*获取完整户型报告,同时会有免费语音讲解服务
-
9045元/㎡
本月挂牌均价
-
0.5%
环比上月
买房加房产交流群,省钱不踩雷
3000+人正在热聊
- 免费咨询
- 专业服务
- 区域解读
- 户型分析


