雨花区政府旁次新小区 毛坯大三房 中间楼层 随时看房
-
113.8万
总价
-
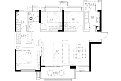
3室2厅2卫
户型
-
121.38㎡
建筑面积
买房加房产交流群,省钱不踩雷
3000+人正在热聊
-
单价
9376元/平米
- 挂牌价格解析
-
楼层
顶层/32层
- 咨询楼层
-
套内
暂无数据
- 咨询套内使用面积
-
楼型
板楼
-
朝向
南
-
装修
毛坯
-
年代
2019
-
发布
2025-04-14
-
地铁
暂无数据
-
咨询总首付
首付约21.8万
首付税费及佣金情况 -
深度测评
小区合能枫丹丽舍(雨花-雨花区政府)
-
更多
楼户比、楼层高度、交易历史、抵押信息
-
核验码
13050855606826381
房源描述(1)
-
核心卖点问经纪人
配套设施齐全,交通便利,业主诚心出售,价格可议。.. 小区地理位置好,环境好,人车分流,配套设施齐全,适宜居家陪读。。 房子是空置毛坯的,房东人在国外,不着急等合适价格....... 房子还有20多万左右贷款,可以自己还。网签时间已满四年,可以正常交易。
-
业主心态问经纪人
房东置换,诚心出售,价格可以再谈,欢迎看房,随时恭候。
-
小区配套问经纪人
位置:小区地理位置佳,绿化率高,居民素质高 配套:有健身器材,小型篮球场,可供小区居民使用 车位:停车位充足,建有地上停车场和地下车库 保安:小区内24保安巡逻
-
服务介绍问经纪人
本人从事房地产多年,公司有大量好房源,欢迎进入我的店铺查看,欢迎随时电话咨询,相信我的专业,为您置业安家保驾护航。
-
税费分析房贷计算
新房: 房税费首套房契税1至3个点。 物业费2元到3元一平方。 购买新房主要税费: 契税:90平以内:1% ;90-124 平收1.5%;124平以上收2%(交房后地税收取) 注:以上收费仅供参考
-
户型解读问经纪人
南北通透大三房,中间楼层,采光视野好,读泰禹本部
周边配套
交通综合评分
查看全部超过长沙80.5%的小区
-
地铁公交
10.0
-
驾车出行
10.0
本月均价 9593元/m²
环比上月 下跌 2.5%
同比去年 下跌 13.24%
猜你喜欢
同小区其它房源
户型齐全,主打户型方正,主卧带卫三居
合能枫丹丽舍户型主要有100平-121平的户型方正,主卧带卫的三居 、132平-142平的南北通透,户型方正的四居 、133平-133平的户型方正,动静分离的其他居 。
*获取完整户型报告,同时会有免费语音讲解服务
-
9672元/㎡
本月挂牌均价
-
0.75%
环比上月
买房加房产交流群,省钱不踩雷
3000+人正在热聊
- 免费咨询
- 专业服务
- 区域解读
- 户型分析


