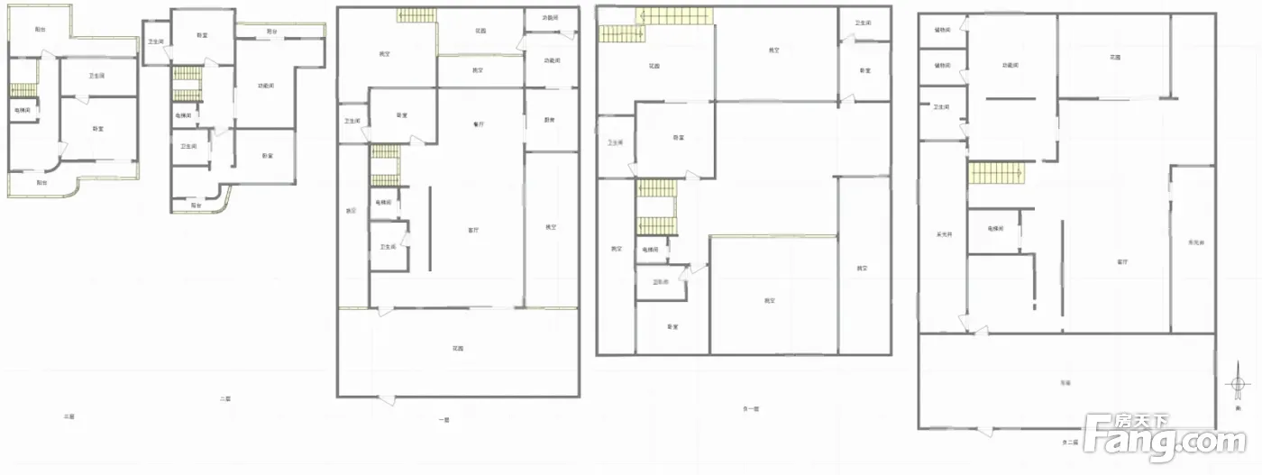
精装类独栋负2层地坪抬高三面采光一窗一景壹号半岛
-
3490万
总价
-
7室2厅
户型
-
831.05㎡
建筑面积
买房加房产交流群,省钱不踩雷
3000+人正在热聊
加入群聊
-
单价
41996元/平米
- 挂牌价格解析
-
楼层
低楼层/3层
- 咨询楼层
-
套内
808.82㎡
- 咨询套内使用面积
-
朝向
西南
-
装修
精装
-
供暖
暂无数据
-
发布
2025-10-31
-
地铁
距5号线重光站约857米
-
咨询总首付
首付约1159万
首付税费及佣金情况 -
深度测评
小区香港置地壹号半岛(两江新区-照母山)
-
更多
楼户比、楼层高度、交易历史、抵押信息
房源描述(1)
周边配套
地址:湖彩路香港置地壹号半岛
交通综合评分
查看全部6.6
“较好”
超过重庆21.9%的小区
-
地铁公交
9.0
-
驾车出行
10.0
本月均价 37469元/m²
环比上月 下跌 0.13%
同比去年 上涨 3.04%
猜你喜欢
同小区其它房源
-
19147元/㎡
本月挂牌均价
-
0.48%
环比上月
买房加房产交流群,省钱不踩雷
3000+人正在热聊
加入群聊
- 免费咨询
- 专业服务
- 区域解读
- 户型分析
免责声明:房源信息由网站用户提供,其真实性、合法性由信息提供者负责,最终以政府部门登记备案为准。本网站不声明或保证内容之正确性和可靠性,购买该房屋时,请谨慎核查。入学情况仅凭历史经验总结,在此不承诺升学事宜。请您在签订合同之前,切勿支付任何形式的费用,以免上当受骗。


