新小区,环境好!临滨江路,龙湖,万达,轻轨
-
60万
总价
-
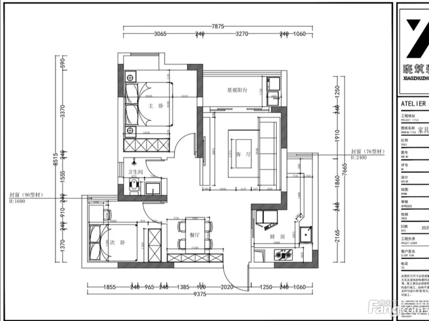
2室1厅
户型
-
72.6㎡
建筑面积
买房加房产交流群,省钱不踩雷
3000+人正在热聊
-
单价
8265元/平米
- 挂牌价格解析
-
楼层
中楼层/20层
- 咨询楼层
-
套内
暂无数据
- 咨询套内使用面积
-
楼型
塔楼
-
朝向
东南
-
装修
毛坯
-
供暖
暂无数据
-
发布
2025-11-24
-
地铁
暂无数据
-
咨询总首付
首付约18.7万
首付税费及佣金情况 -
深度测评
小区琅樾江山(大渡口-茄子溪)
-
更多
楼户比、楼层高度、交易历史、抵押信息
房源描述(1)
-
核心卖点问经纪人
相信为您推荐的这套房子您一定会满意,赶快行动吧,先到先得! 房屋年代∶null,面积∶72.6平方米,朝向∶东 1. 小区配备高端物业管理,让你享受宾至如归的服务; 2. 小区人文素质高,是您的居家的绝佳选择; 3. 小区居住安静舒适,让您拥有高品质的生活环境; 4. 小区绿化率高,绿树成荫鸟语花香让您随时呼吸到新鲜空气。
周边配套
交通综合评分
查看全部超过重庆56.1%的小区
-
地铁公交
9.0
-
驾车出行
10.0
本月均价 9787元/m²
环比上月 下跌 1.22%
同比去年 下跌 7.03%
猜你喜欢
同小区其它房源
户型齐全,主打挑高客厅,主卧套间二居
琅樾江山户型主要有120平-120平的挑高客厅,主卧套间的二居 、134平-134平的主卧套间,双阳台的三居 、146平-146平的主卧套间,双阳台的四居 。
*获取完整户型报告,同时会有免费语音讲解服务
-
7723元/㎡
本月挂牌均价
-
0.27%
环比上月
买房加房产交流群,省钱不踩雷
3000+人正在热聊
- 免费咨询
- 专业服务
- 区域解读
- 户型分析

