西派城一期清水顶跃看房方便随时可看
-
355万
总价
-
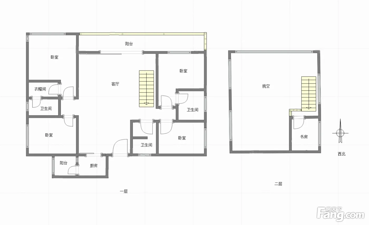
5室2厅
户型
-
213㎡
建筑面积
买房加房产交流群,省钱不踩雷
3000+人正在热聊
加入群聊
-
单价
16667元/平米
- 挂牌价格解析
-
楼层
高楼层/42层
- 咨询楼层
-
套内
168㎡
- 咨询套内使用面积
-
楼型
塔楼
-
朝向
西南
-
装修
毛坯
-
供暖
暂无数据
-
发布
2025-10-16
-
地铁
距4号线头塘站约895米
-
咨询总首付
首付约107.2万
首付税费及佣金情况 -
深度测评
小区中国铁建·西派城三期(两江新区-海尔路)
-
更多
楼户比、楼层高度、交易历史、抵押信息
周边配套
地址:海尔路
交通综合评分
查看全部6.6
“较好”
超过重庆4.7%的小区
-
地铁公交
9.0
-
驾车出行
10.0
本月均价 18373元/m²
环比上月 下跌 0.75%
同比去年 下跌 6.35%
猜你喜欢
同小区其它房源
买房加房产交流群,省钱不踩雷
3000+人正在热聊
加入群聊
免责声明:房源信息由网站用户提供,其真实性、合法性由信息提供者负责,最终以政府部门登记备案为准。本网站不声明或保证内容之正确性和可靠性,购买该房屋时,请谨慎核查。入学情况仅凭历史经验总结,在此不承诺升学事宜。请您在签订合同之前,切勿支付任何形式的费用,以免上当受骗。



