龙湖源著北区经典2楼带花园带地下室有车位视野开阔
-
398万
总价
-
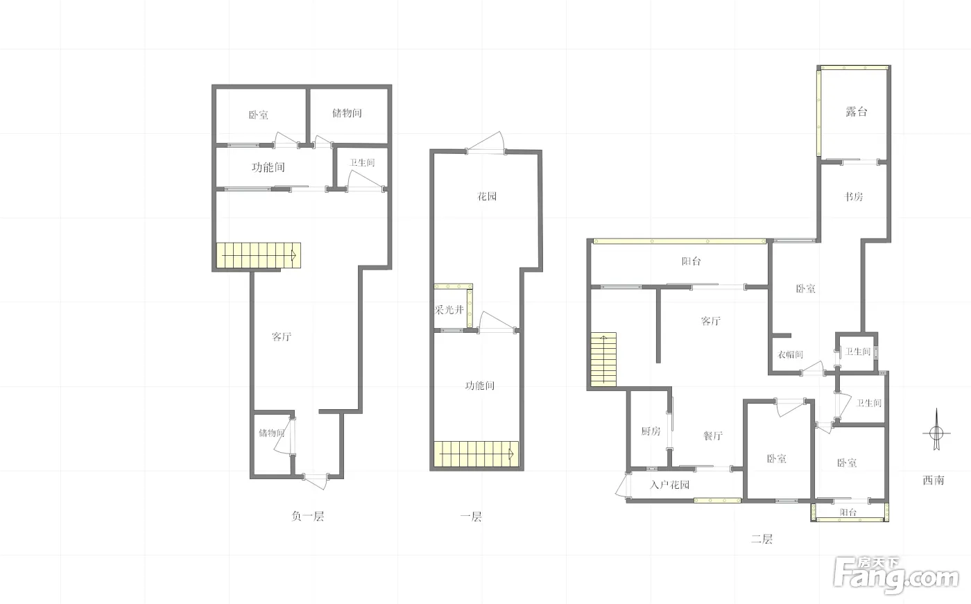
4室2厅
户型
-
181.94㎡
建筑面积
买房加房产交流群,省钱不踩雷
3000+人正在热聊
加入群聊
-
单价
21876元/平米
- 挂牌价格解析
-
楼层
低楼层/8层
- 咨询楼层
-
套内
暂无数据
- 咨询套内使用面积
-
楼型
板楼
-
朝向
南
-
装修
毛坯
-
供暖
暂无数据
-
发布
2025-09-26
-
地铁
距环线体育公园站约437米
-
咨询总首付
首付约120万
首付税费及佣金情况 -
深度测评
小区龙湖源著北区(江北-南桥寺)
-
更多
楼户比、楼层高度、交易历史、抵押信息
周边配套
地址:盘溪路420号
交通综合评分
查看全部7.0
“较好”
超过重庆51.8%的小区
-
地铁公交
10.0
-
驾车出行
10.0
本月均价 14633元/m²
环比上月 下跌 0.22%
同比去年 下跌 5.84%
猜你喜欢
同小区其它房源
户型齐全,主打户型方正,明卫,客厅朝南,双阳台三居
龙湖源著北区户型主要有66平-188平的户型方正,明卫,客厅朝南,双阳台的三居 、120平-181平的户型方正,明卫,主卧朝南的四居 、45平-94平的双阳台的二居 。
*获取完整户型报告,同时会有免费语音讲解服务
买房加房产交流群,省钱不踩雷
3000+人正在热聊
加入群聊
免责声明:房源信息由网站用户提供,其真实性、合法性由信息提供者负责,最终以政府部门登记备案为准。本网站不声明或保证内容之正确性和可靠性,购买该房屋时,请谨慎核查。入学情况仅凭历史经验总结,在此不承诺升学事宜。请您在签订合同之前,切勿支付任何形式的费用,以免上当受骗。



